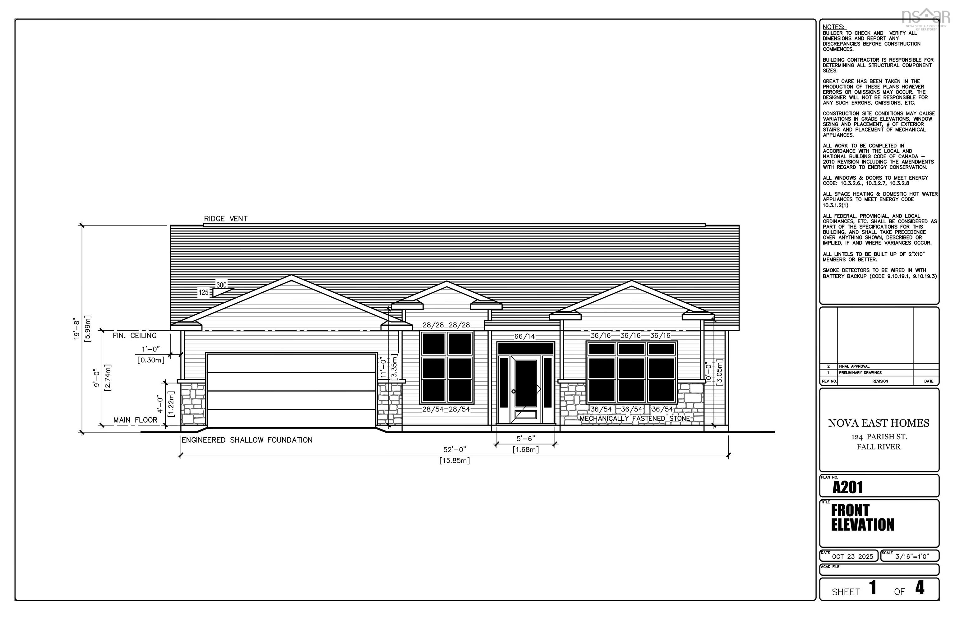
124 Parish Street
Summary
|
Beds
3
|
Baths
3
|
Single Family
1,911 sq ft
|
Storeys
1
|
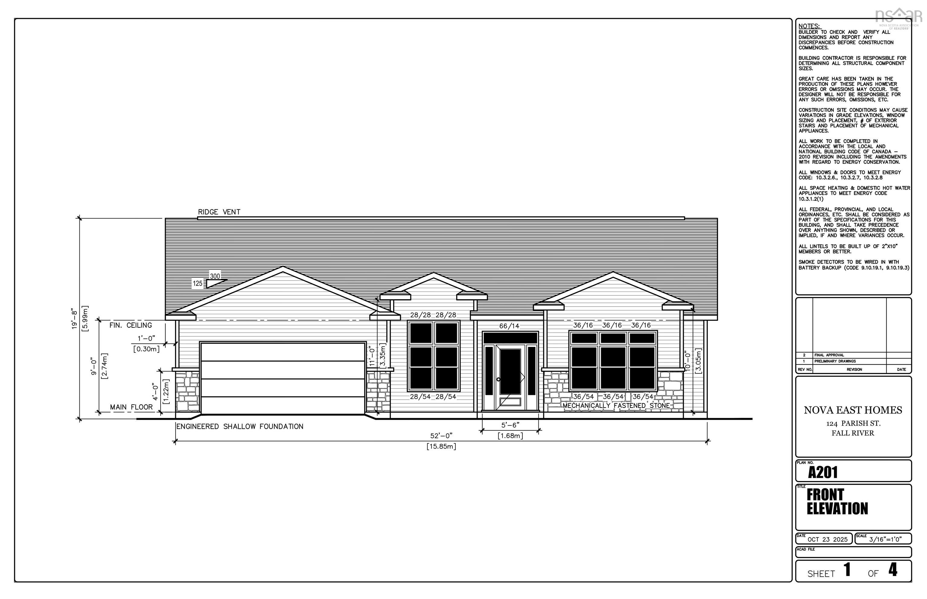
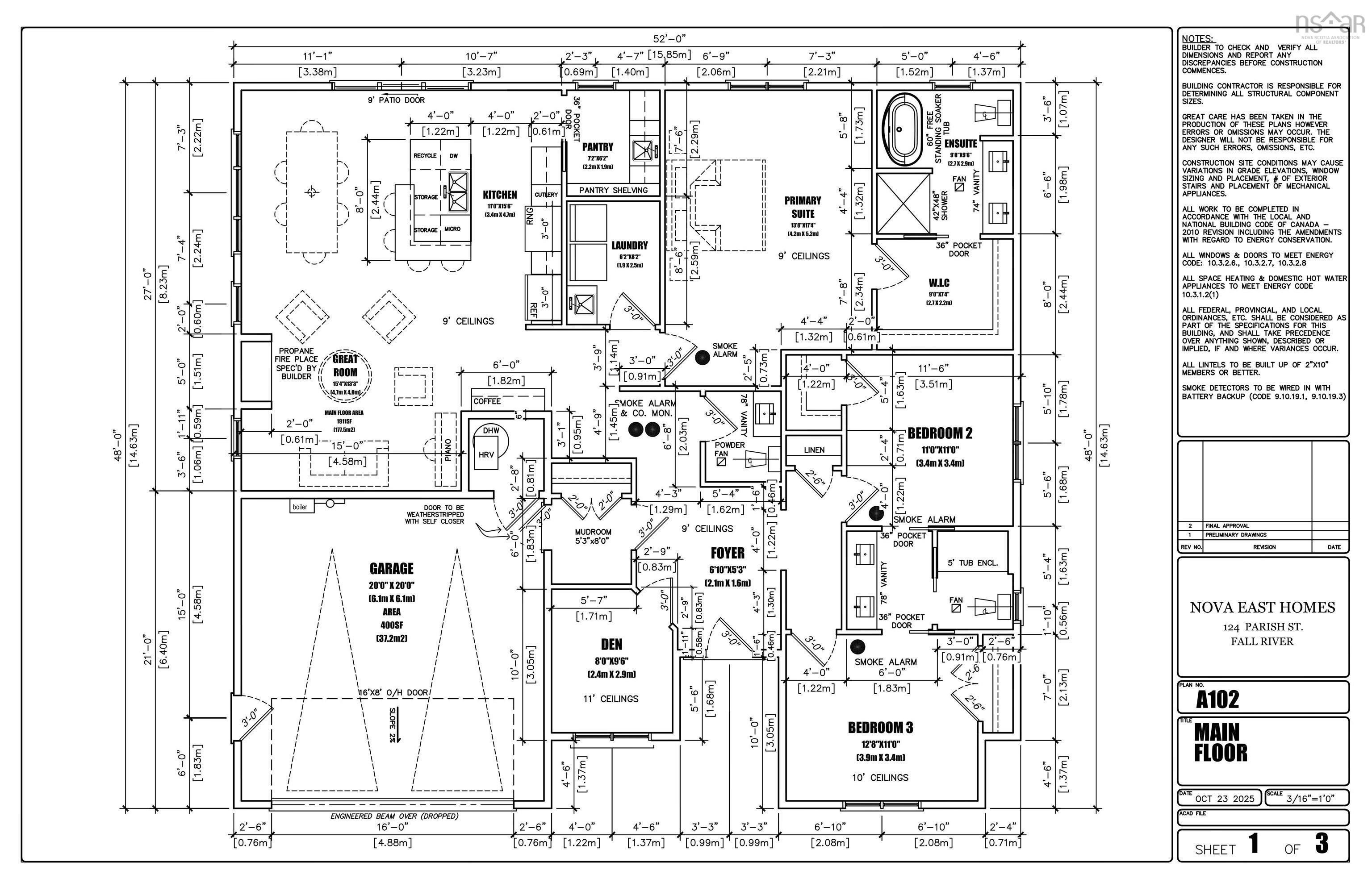
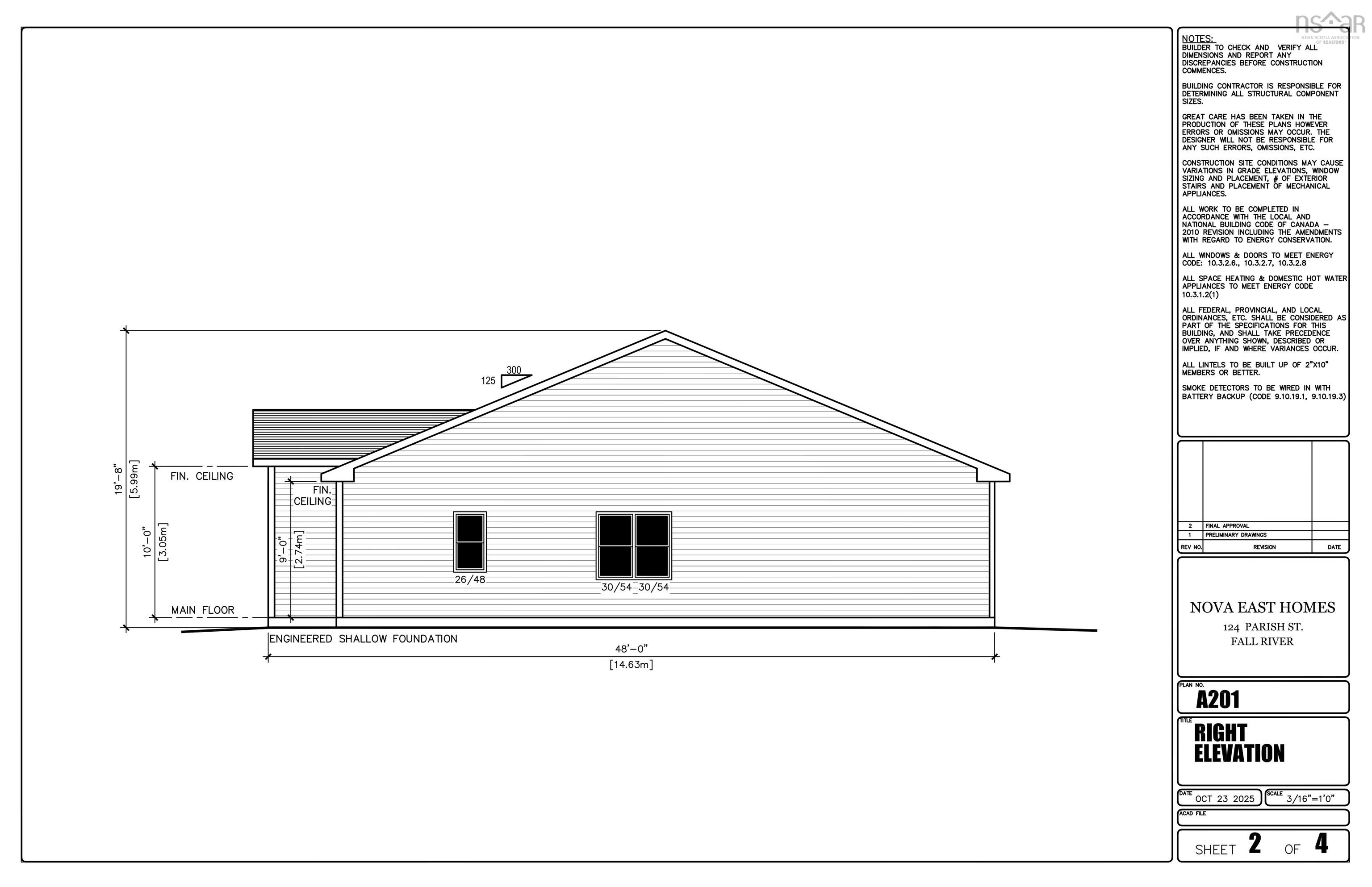
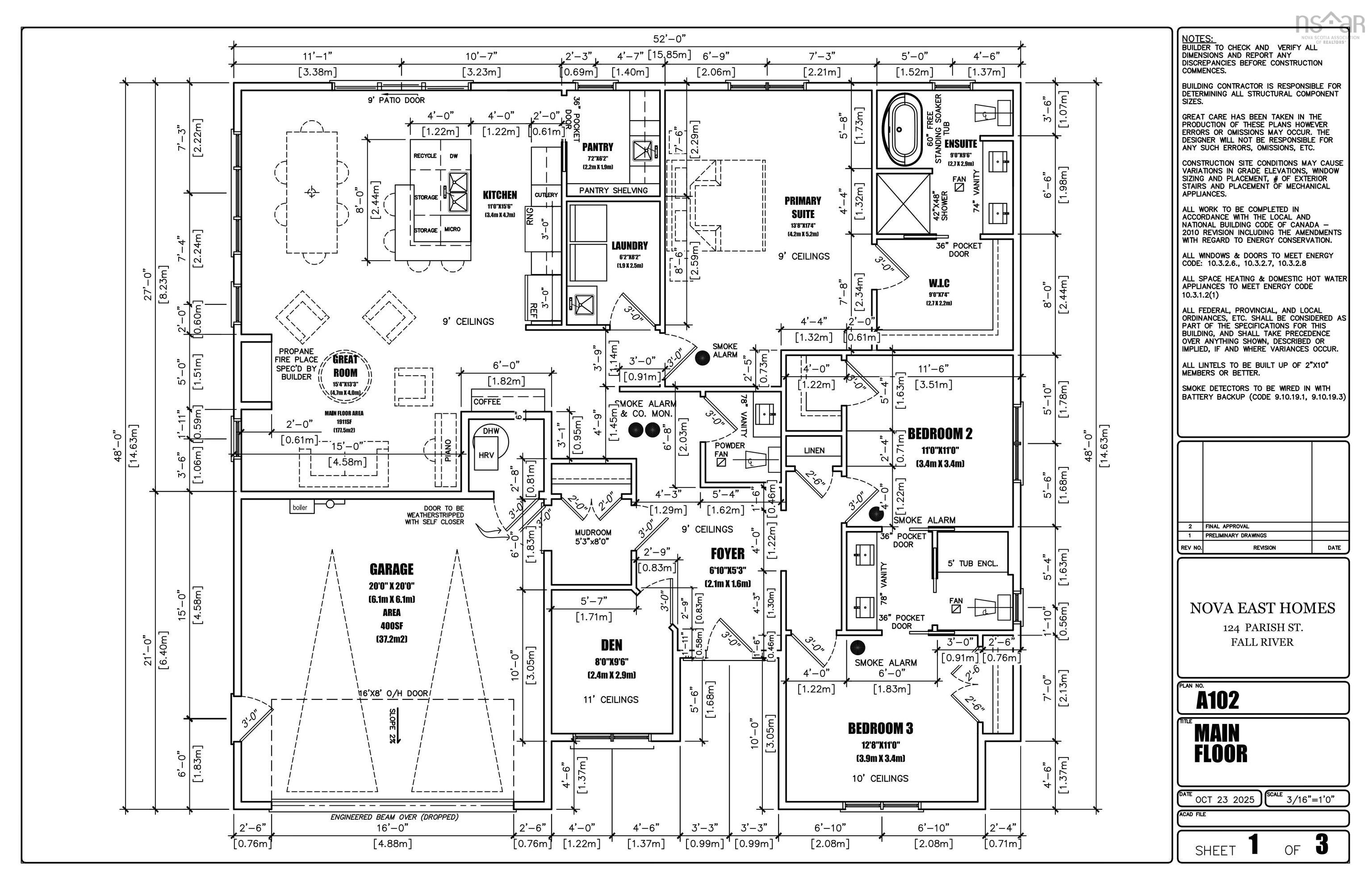
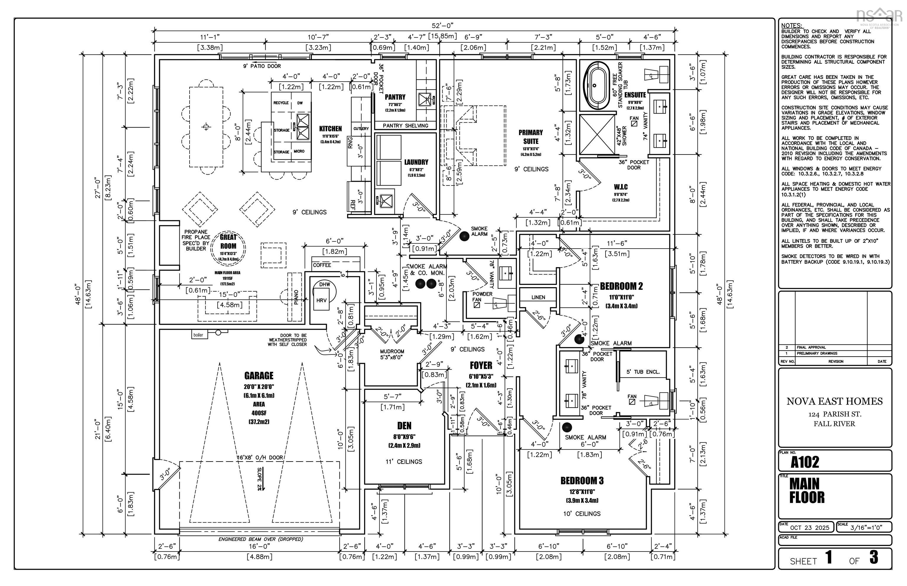
Welcome to this stunning new construction from Nova East Homes nestled in beautiful Kinloch Estates in Fall River, where modern comfort meets natural tranquility. This thoughtfully designed home offers 1,911 square feet of meticulously crafted living space, perfectly balancing functionality with contemporary elegance. Step inside to discover three generously sized bedrooms, including a primary bedroom with ensuite and a Jack & Jill ensuite for the other two bedrooms. Nine foot ceilings throughout lend to the spacious feeling. Enjoy the convenience of one-level living with in-floor radiant heat throughout the living space. The surrounding area boasts a blend of natural beauty and convenient amenities. Built with attention to detail and quality craftsmanship, this home showcases superior construction materials and modern finishes throughout. Don't miss the chance to be the first owner of this remarkable home.
Property Details
| Property Style | Residential |
|---|---|
| Zoning | R1-B |
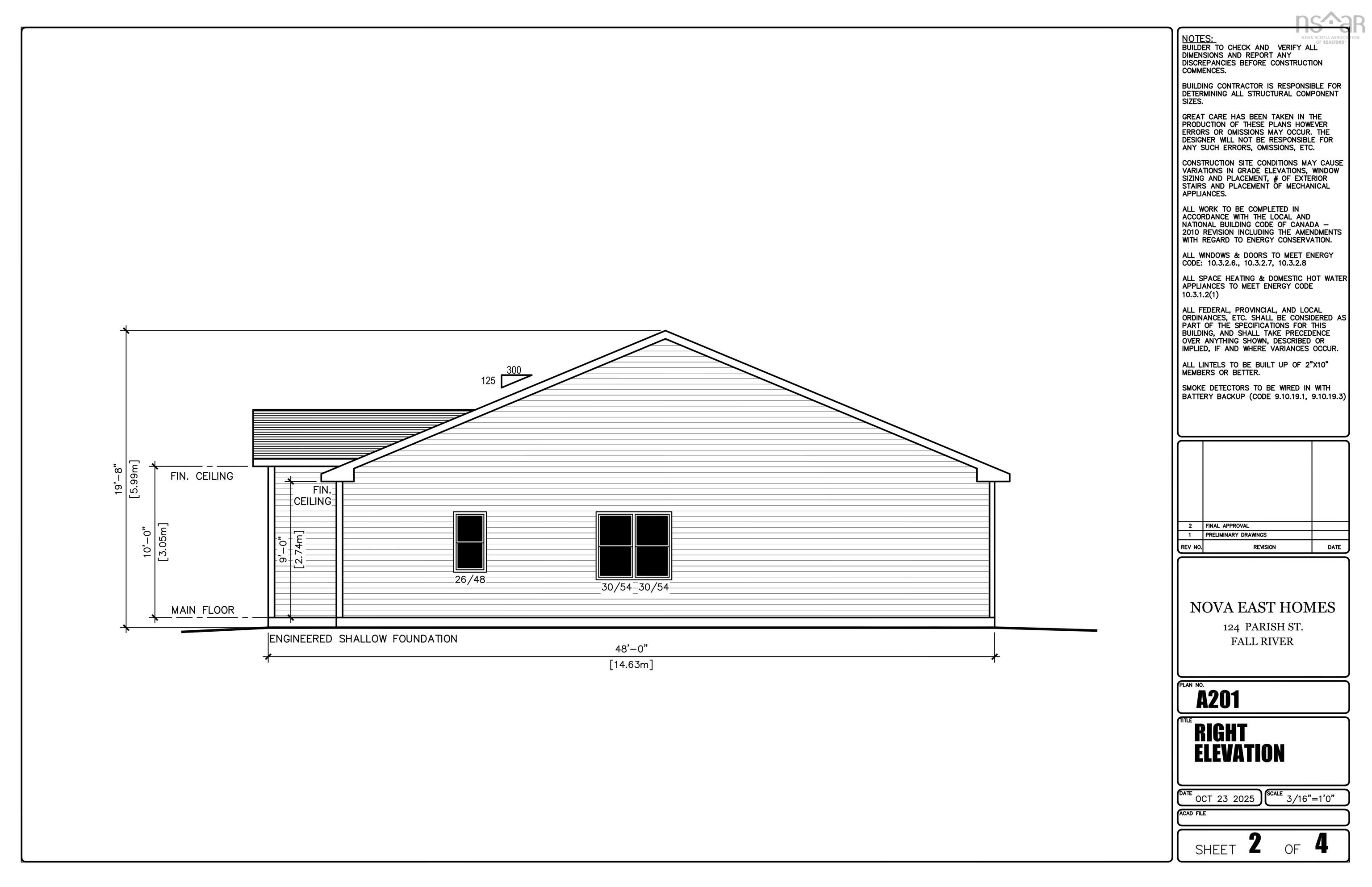
| Building Style | 1 Level |
| Structure Style | Detached |
| Utilities | Electricity |
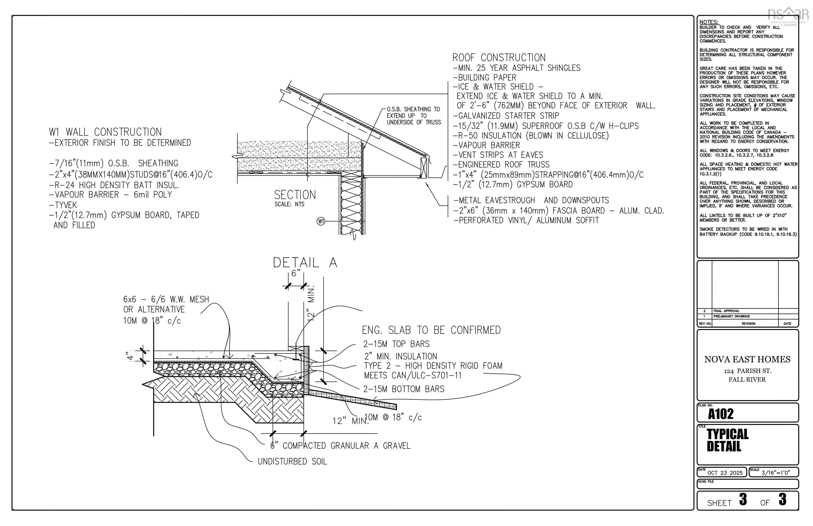
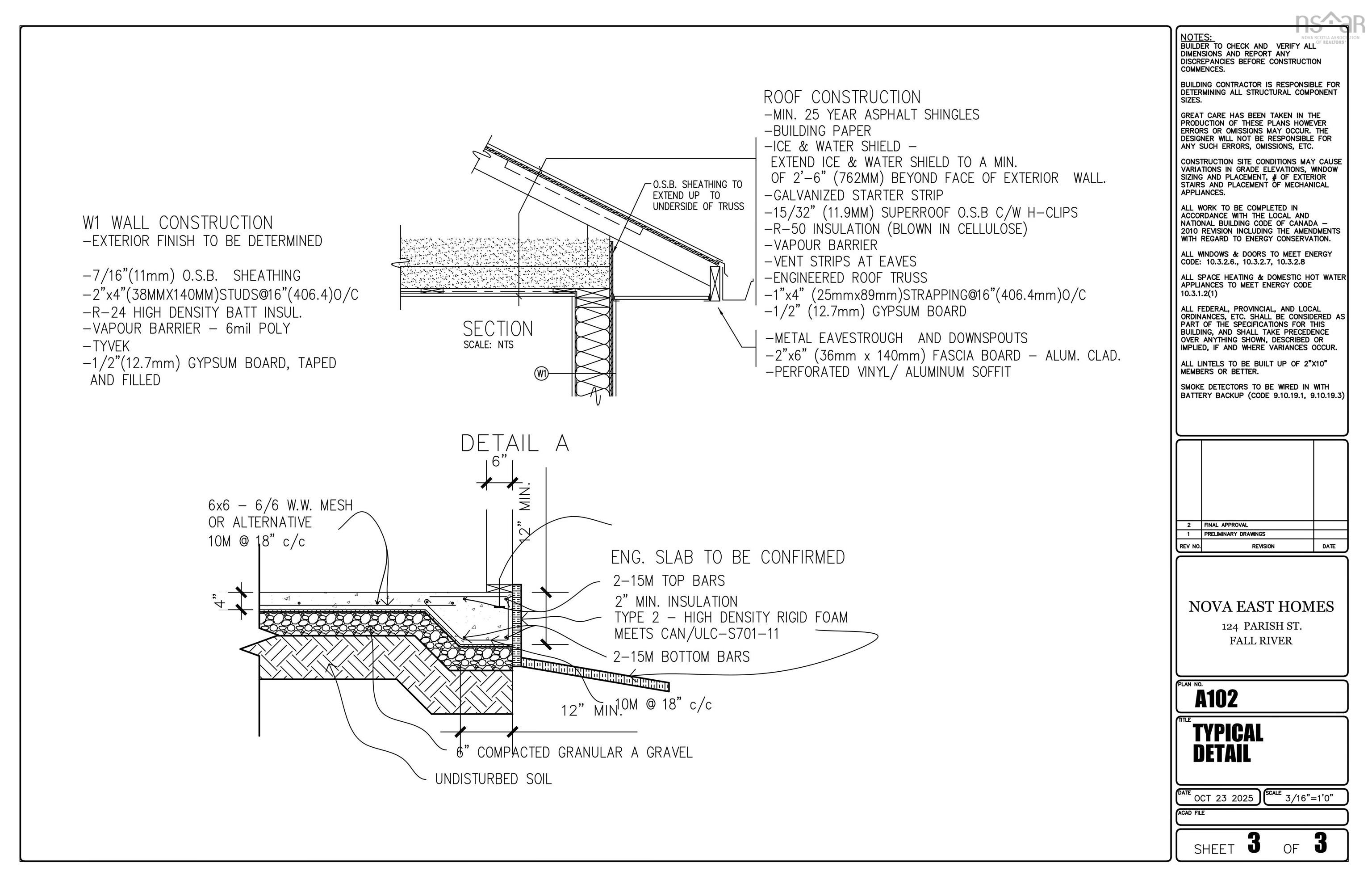
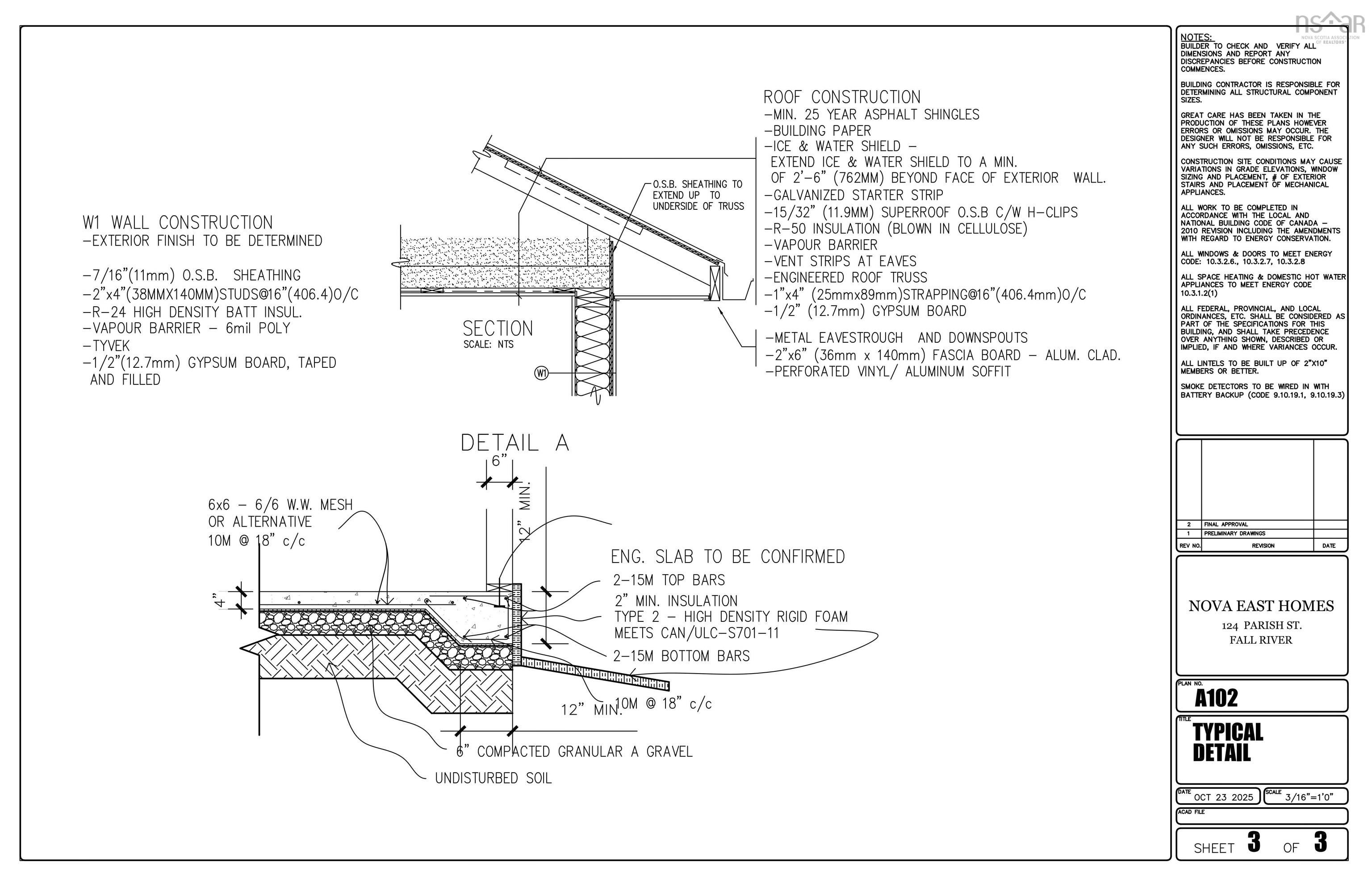
| Roof | Asphalt Shingle |
| Flooring | Tile, Vinyl Plank |
| Garage Type | Attached, Double, Heated, Wired |
| Driveway | Gravel |
| Foundation | Poured Concrete, Slab |
| Exterior | Stone, Vinyl |
| Heating Type | Baseboard, Heat Pump -Ductless, Hot Water, In Floor, Radiant, Ductless Cooling |
| Fuel Type | Electric |
| Water Source | Drilled Well |
| Sewage | Septic |
| Land Features | Partially Cleared, Partial Landscaped, Year Round Road |
Measurements
| Main Living Area | 1,911 sq ft |
|---|---|
| Total Living Area | 1,911 sq ft |
| Lot Size 1 | 71,983 sq ft |
| Total Lot Size | 71,983 sq ft |
| Building Dimensions | 52’ × 48’ |
| Lot Size Source | Land Reg |
| Property Size | 1 To 2.99 Acres |
| Floor | Room | Dimensions |
|---|---|---|
| Main Floor | Great Room | 15’5” × 13’4” |
| Main Floor | Kitchen | 15’7” × 11’ |
| Main Floor | Primary Bedroom | 17’5” × 13’10” |
| Main Floor | Bedroom | 11’ × 11’ |
| Main Floor | Bedroom | 12’10” × 11’ |
| Main Floor | Den/Office | 9’7” × 8’ |
| Main Floor | Laundry | 8’2” × 6’2” |
| Main Floor | Mud Room | 8’ × 5’4” |
| Main Floor | OTHER | 7’2” × 6’2” |
| Main Floor | Ensuite Bath 1 | 9’7” × 9’ |
| Main Floor | Ensuite Bath 2 | 11’ × 6’7” |
| Main Floor | Bath 1 | 6’ × 5’ |
| Main Floor | Foyer | 6’1” × 5’4” |
Features
- Driveway
- Fireplace
- Garage
- Landscaped
| Other Features | Ensuite Bath, HRV (Heat Rcvry Ventln), Electric Fireplace |
|---|
Location Details
| County | Halifax |
|---|---|
| District | Waverley, Fall River, Oakfield |
| Community Features | Golf Course, Park, Playground, Shopping, Place Of Worship |













