169 Cockscomb Lake Drive
Summary
|
Beds
2
|
Baths
1
|
Single Family
1,008 sq ft
|
Storeys
1
|
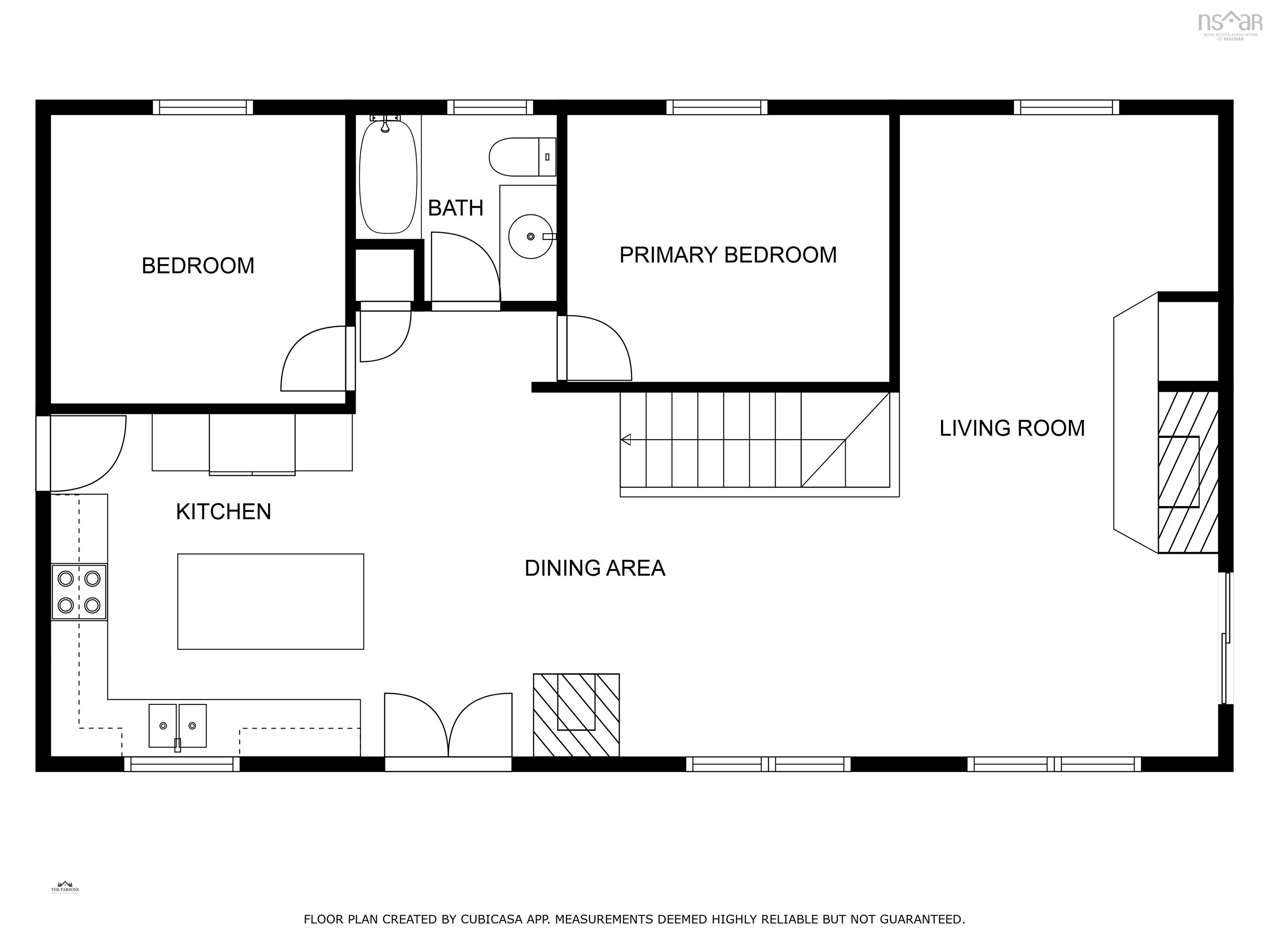
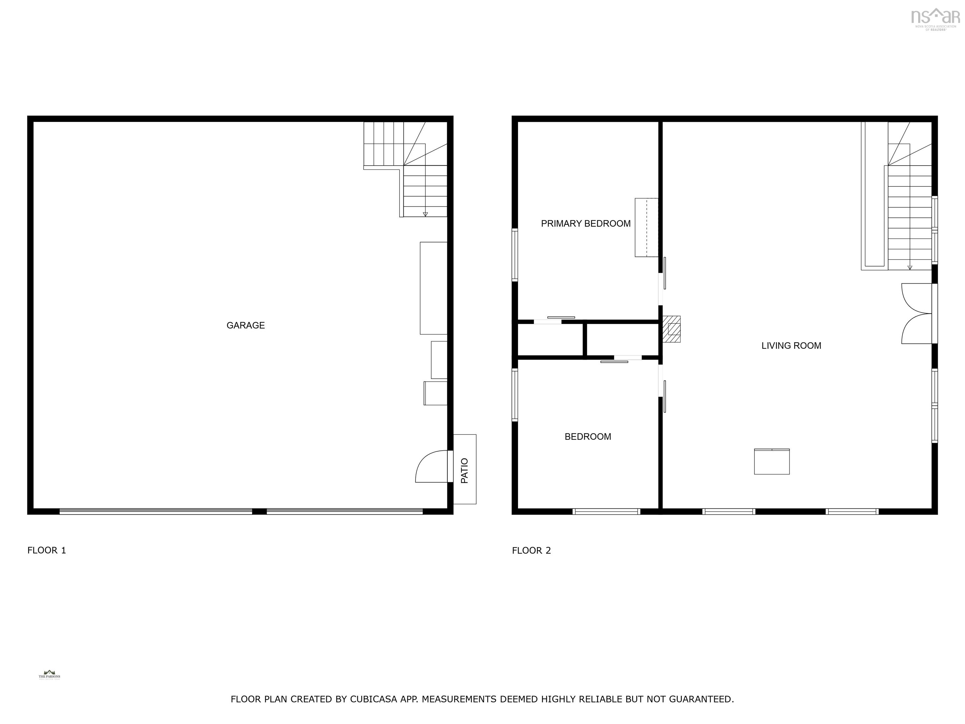
Charming Lakefront Home on Cockscomb Lake – A Rare Find! Welcome to your lakeside retreat! This beautifully crafted 2-bedroom, 1-bath Dow and Duggan log siding home offers cozy comfort with a stunning wood interior and a breathtaking floor-to-ceiling stone fireplace at its heart. Nestled on the shores of Cockscomb Lake, one of Mount Uniacke’s largest and most sought-after boating lakes, this property is the perfect escape for nature lovers and water enthusiasts alike. Step outside to a wrap-around covered deck that provides panoramic views of the lake — the ideal setting for morning coffee, evening sunsets, or entertaining guests. The home also features an attached garage and an unfinished basement, offering potential for expanded living space or storage. But that’s not all — the property boasts a massive 36x31 detached garage with oversized double doors, perfect for storing boats, ATVs, or other toys. Above the garage, you’ll find a bonus space with 2 additional bedrooms, a large open living area, and its own covered deck with lake views — perfect for guests, rental potential, or a private retreat. The landscaping is truly one-of-a-kind, with thoughtfully designed steps and multi-level decks leading down to your private dock. Whether you're boating, swimming, or simply enjoying the view, every detail of this property enhances your lakefront lifestyle. Don’t miss this opportunity to own a unique and versatile lakefront home with unmatched character and charm on Cockscomb Lake.
Property Details
| Property Style | Residential |
|---|---|
| Zoning | LR |
| Building Style | Bungalow |
| Structure Style | Detached |
| Structures | Deck, Dock |
| Utilities | Cable, Electricity, High Speed Internet, Telephone |
| Roof | Asphalt Shingle |
| Flooring | Other |
| Basement | Full, Undeveloped, Walkout |
| Garage Type | Detached, Single, Double, Built-In, Wired |
| Driveway | Gravel |
| Foundation | Poured Concrete |
| Exterior | Log |
| Heating Type | Baseboard, Fireplace, Heat Pump -Ductless |
| Fuel Type | Electric, Wood |
| Water Source | Pond/Lake |
| Sewage | Septic |
| Building Age | 27 Years |
| Year Built | 1998 |
| Land Features | Cleared, Landscaped, Sloping/Terraced |
Measurements
| Main Living Area | 1,008 sq ft |
|---|---|
| Total Living Area | 1,008 sq ft |
| Lot Size 1 | 25,539 sq ft |
| Total Lot Size | 25,539 sq ft |
| Building Dimensions | 42’ × 24’ |
| Lot Size Source | Land Reg |
| Property Size | 0.5 To 0.99 Acres |
| Floor | Room | Dimensions |
|---|---|---|
| Main Floor | Living Room | 23’ × 11’6” |
| Main Floor | Dining Room | 9’2” × 7’5” |
| Main Floor | Kitchen | 22’ × 12’5” |
| Main Floor | Primary Bedroom | 10’7” × 9’1” |
| Main Floor | Bedroom | 10’6” × 9’11” |
| Main Floor | Bath 1 | 6’6” × 6’11” |
Features
- Balcony
- Deck
- Driveway
- Fireplace
- Garage
- Landscaped
| Other Features | Balcony, Fireplace(s) |
|---|
Location Details
| County | Hants |
|---|---|
| District | East Hants, Colchester West |
| Schools |
|
































