2455 2457 Old Sambro Road
Summary
|
Beds
6
|
Baths
6
|
Duplex
3,712 sq ft
|
Storeys
2
|
Built in 2022, this ICF-constructed duplex sits on 6.19 acres of land and offers exceptional privacy with its thoughtful setback from the road, all while backing onto crown land for a peaceful, natural setting. Each side features three large bedrooms, two and a half stylish bathrooms (including ensuites), large walk-in closets, 200-amp electrical panels, two mini-split heat pumps, a 1.5 car built-in garage and a metal roof. A separate retreat at the back of the property provides a flexible space ideal for a home office, gym, studio, or a quiet place to unwind. Whether you’re looking for an investment property, a home where you can rent out one side, or a spacious family compound, this modern and efficient duplex offers versatility, comfort, and room to grow in a beautiful natural environment. In Williamswood, you are minutes to beaches, lakes, hiking trails, schools, parks, and amenities.
Property Details
| Property Style | Residential |
|---|---|
| Zoning | R-2 |
| Building Style | 2 Storey |
| Structure Style | Side By Side |
| Structures | Shed |
| Utilities | Cable, Electricity, High Speed Internet |
| Roof | Metal |
| Flooring | Carpet, Tile |
| Garage Type | 1.5, Built-In, Heated, Wired |
| Driveway | Gravel, Multiple Driveways |
| Foundation | Slab |
| Exterior | Wood Shingles, Stone, Vinyl |
| Heating Type | Baseboard, Heat Pump -Ductless |
| Fuel Type | Electric |
| Water Source | Drilled Well |
| Sewage | Septic |
| Building Age | 4 Years |
| Year Built | 2022 |
| Land Features | Partially Cleared, Landscaped, Softwood Bush, Wooded/Treed |
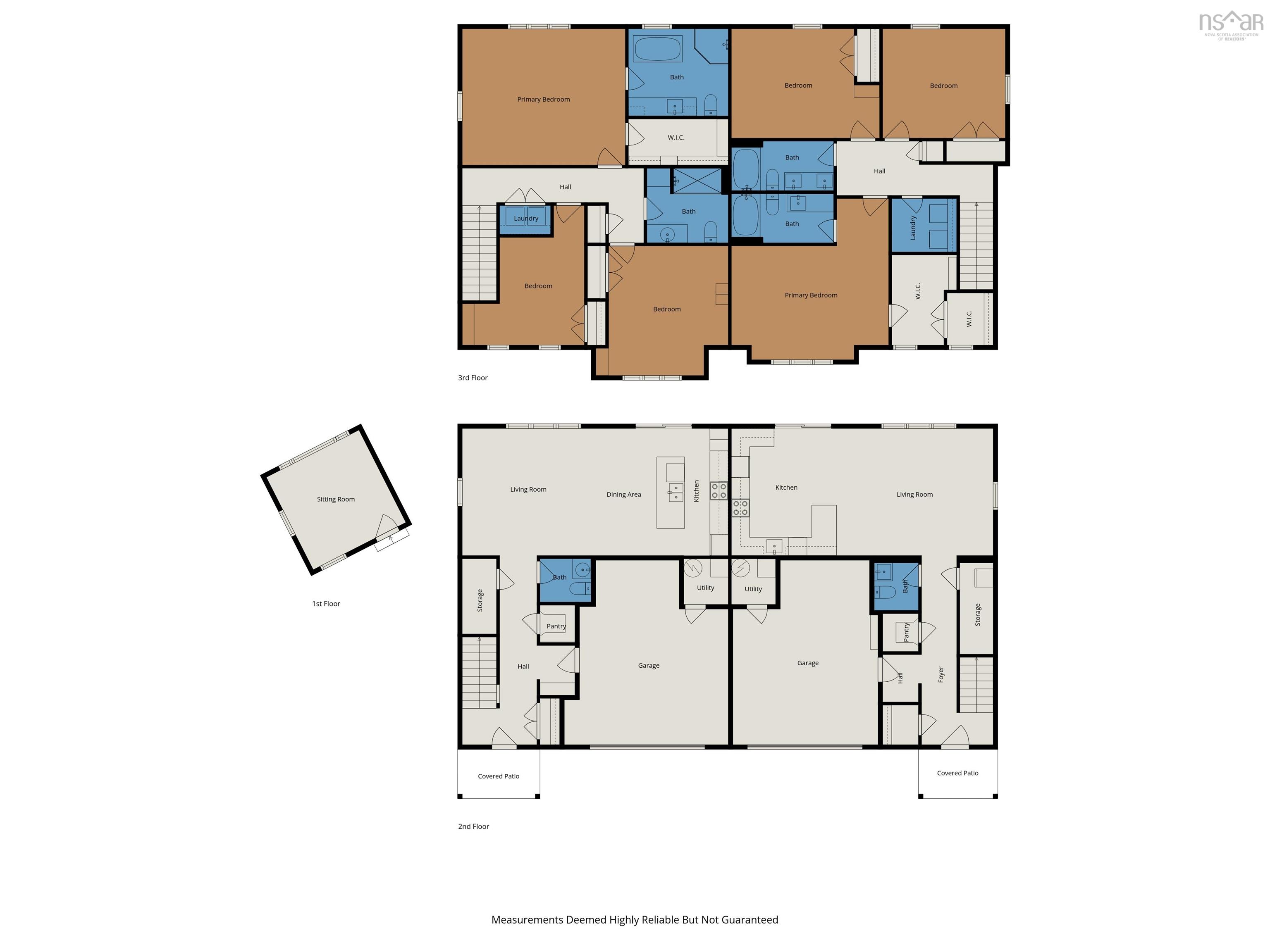
Measurements
| Main Living Area | 3,712 sq ft |
|---|---|
| Total Living Area | 3,712 sq ft |
| Lot Size 1 | 269,636 sq ft |
| Total Lot Size | 269,636 sq ft |
| Building Dimensions | 60’ × 36’ |
| Lot Size Source | Land Reg |
| Property Size | 3 To 9.99 Acres |
| Floor | Room | Dimensions |
|---|---|---|
| Main Floor | Kitchen | 14’ × 15’ |
| Main Floor | Living Room | 14’ × 13’ |
| Main Floor | Bath 1 | 5’ × 4’ |
| Main Floor | Kitchen | 14’ × 15’ |
| Main Floor | Living Room | 14’ × 13’ |
| Main Floor | Bath 1 | 5’ × 5’ |
| 2nd Level | Laundry | 5’ × 2’ |
| 2nd Level | Bedroom | 12’ × 9’ |
| 2nd Level | Bedroom | 12’ × 13’ |
| 2nd Level | Bath 1 | 8’ × 7’ |
| 2nd Level | Primary Bedroom | 17’ × 14’ |
| 2nd Level | Ensuite Bath 1 | 8’ × 10’ |
| 2nd Level | Laundry/Bath | 7’ × 5’ |
| 2nd Level | Bedroom | 11’ × 12’ |
| 2nd Level | Bedroom | 11’ |
| 2nd Level | Bath 1 | 5’ × 10’ |
| 2nd Level | Primary Bedroom | 12’ × 16’ |
| 2nd Level | Ensuite Bath 1 | 10’ × 5’ |
| 2nd Level | OTHER | 5’ × 9’ |
Features
- Driveway
- Garage
- Gym
- Landscaped
| Appliances Included | Range - Electric, Dishwasher, Dryer, Washer, Refrigerator |
|---|---|
| Other Features | Ensuite Bath |
Location Details
| County | Halifax |
|---|---|
| District | Harrietsfield, Sambr And Halibut Bay |
| Community Features | Park, Playground, School Bus Service, Beach |
| Schools |
|















































