3100 Highway 354
Summary
|
Beds
3
|
Baths
1
|
Single Family
1,720 sq ft
|
Storeys
2
|
Located just 30 minutes from Halifax Stanfield International Airport and approximately 50 minutes from Halifax, this well cared for home offers the ideal blend of privacy, comfort, and convenience. Set on 2.3 acres of peaceful land, the property features a beautifully treed lot that creates a sense of calm and seclusion while still providing easy access to city amenities. Inside, the main level offers a bright and welcoming dining area that overlooks a cozy sunken living room. Large windows fill the space with natural light, and patio access invites you to step outside and enjoy the surrounding landscape and an overview of the garden. The upper level includes two comfortable bedrooms and a full bath, while the lower level provides a third bedroom, laundry, storage, and a spacious rec room that can adapt to your lifestyle. Perfect for family gatherings, a home office, or guest space! Pride of ownership is evident throughout this thoughtfully maintained property. With its combination of charm, space, and tranquility, 3100 Highway 354 delivers a wonderful opportunity to enjoy country living with the convenience of being within easy reach of Halifax.
Property Details
| Property Style | Residential |
|---|---|
| Zoning | RU-2 |
| Building Style | Back Split |
| Structure Style | Detached |
| Utilities | Cable, Electricity, High Speed Internet, Telephone |
| Roof | Asphalt Shingle |
| Flooring | Carpet, Concrete, Laminate, Vinyl |
| Basement | Fully Developed |
| Driveway | Gravel |
| Foundation | Poured Concrete |
| Exterior | Vinyl |
| Heating Type | Baseboard, Heat Pump -Ductless |
| Fuel Type | Electric |
| Water Source | Dug |
| Sewage | Septic |
| Building Age | 33 Years |
| Year Built | 1992 |
| Land Features | Level, Wooded/Treed |
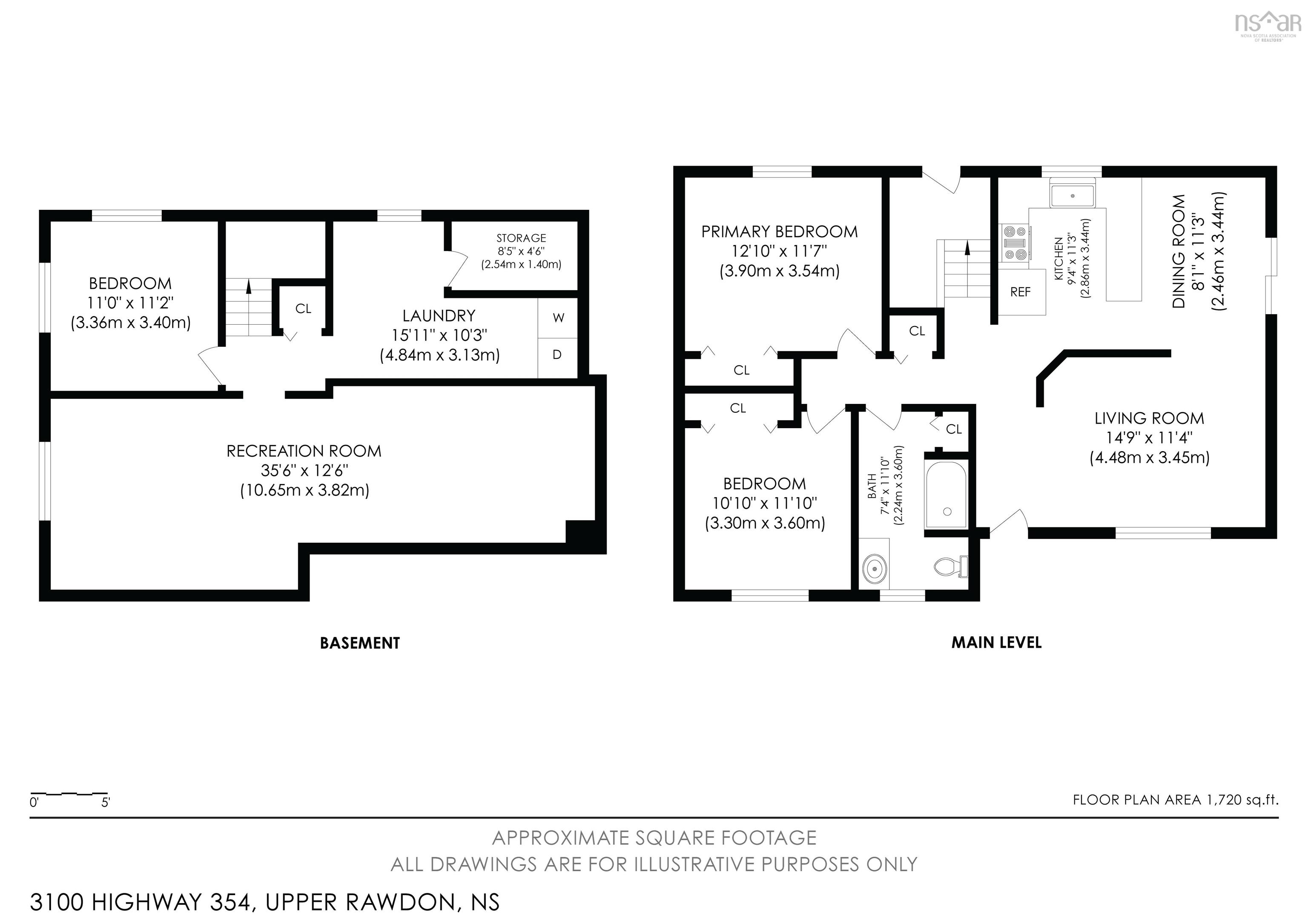
Measurements
| Main Living Area | 939 sq ft |
|---|---|
| Total Living Area | 1,720 sq ft |
| Lot Size 1 | 100,188 sq ft |
| Total Lot Size | 100,188 sq ft |
| Property Size | 1 To 2.99 Acres |
| Floor | Room | Dimensions |
|---|---|---|
| Main Floor | Living Room | 14’11” × 11’5” |
| Main Floor | Dining Room | 8’1” × 11’4” |
| Main Floor | Kitchen | 9’5” × 11’4” |
| Main Floor | Primary Bedroom | 12’1” × 11’8” |
| Main Floor | Bedroom | 10’1” × 11’1” |
| Main Floor | Bath 1 | 1’5” × 11’1” |
| Basement | Rec Room | 35’7” × 12’7” |
| Basement | Bedroom | 11’ × 11’2” |
| Basement | Laundry/Bath | 15’1” × 10’4” |
| Basement | Utility | 8’6” × 4’7” |
Features
- Driveway
| Appliances Included | Stove, Dryer, Washer, Refrigerator |
|---|
Location Details
| County | Hants |
|---|---|
| District | East Hants, Colchester West |
Contact Agent
Michael Sears
michael.sears@ververealty.ca
Thank you for reaching out
Your message was delivered, and a confirmation email has been sent to the address provided. If you do not see it in your inbox, please check your junk or spam folder.
We’re sorry, but there was an issue submitting your request. Please try again shortly, or contact us directly if the problem persists.




















































