359 Seligs Road
Summary
|
Beds
5
|
Baths
4
|
Single Family
5,646 sq ft
|
Storeys
2
|
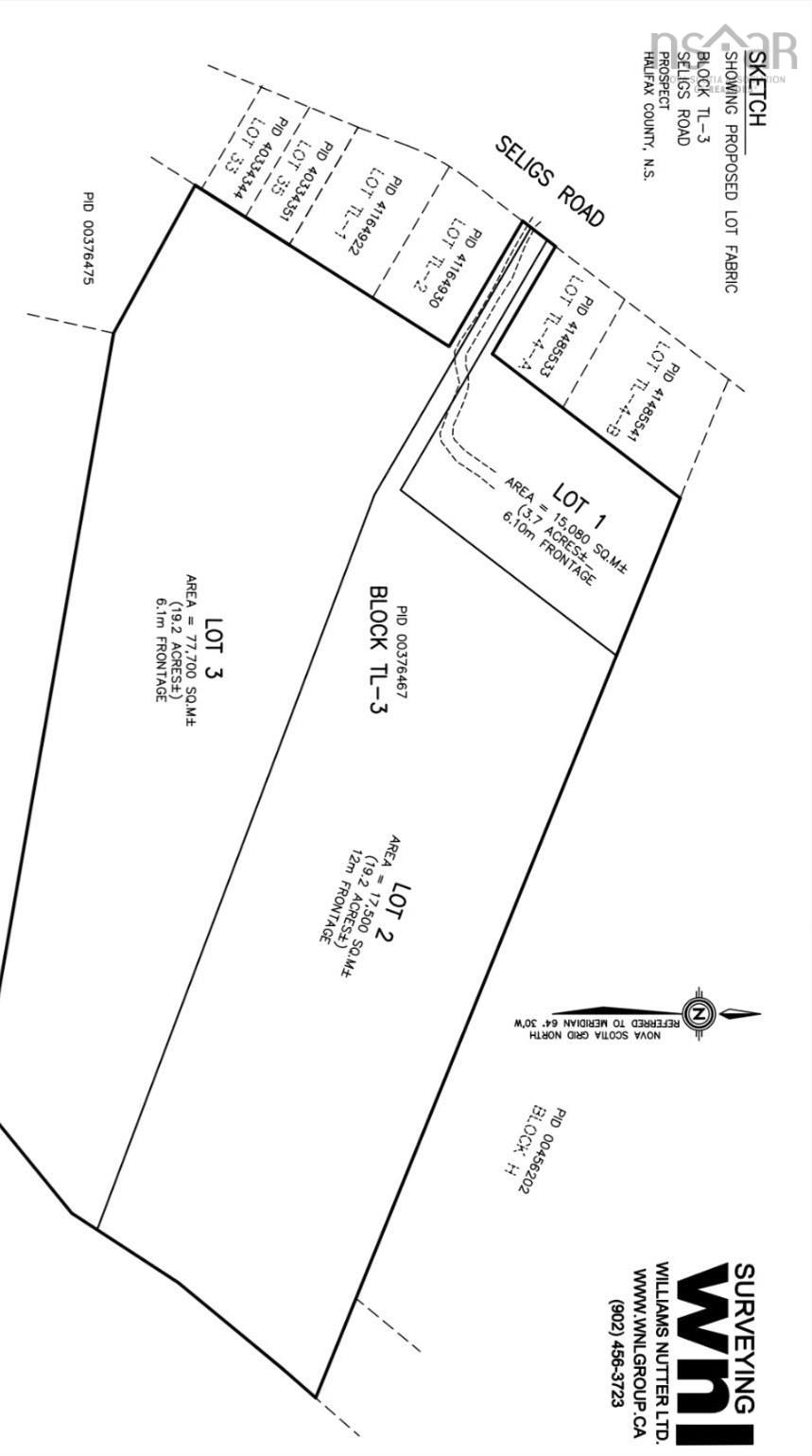
Welcome to this beautifully updated 14-year-old home set on a private 3.7-acre lot with stunning views of Prospect Bay. Offering an impressive 5,646 sq. ft. of living space, this 5-bedroom, 4-bathroom property is thoughtfully designed for modern living, including a fully self contained in-law suite, perfect for multi-generational families or added income potential. Efficiency meets comfort with three sources of heat and a fully solar powered system, keeping monthly utility costs exceptionally low. The main living space is both warm and inviting, featuring vaulted ceilings and a striking floor to ceiling stone fireplace. The kitchen is well appointed with a walk-in pantry, while the spacious primary suite offers a walk-in closet and a beautiful ensuite bath. Designed for both relaxation and entertaining, the lower level boasts an expansive gym, bar, and theatre area, creating the ultimate recreational retreat. Step outside to enjoy the hot tub, outdoor firepit with multiple seating areas, greenhouse, and generous green space, all enhancing the home’s peaceful, lifestyle focused setting. Extensive upgrades have been completed, including additional heat pumps, a new on demand boiler system, and a water softener with reverse osmosis. A newly built, double-detached heated garage with two bay doors and a workshop area adds exceptional functionality. This is truly a turnkey property with no detail overlooked, offering the charm of country living just minutes from the city, and the rare benefit of little to no monthly heating or power costs. Note: The home currently sits on a larger parcel, with an approved subdivision in place to retain 3.7 acres with the home. Subdivision to be completed prior to closing. Two additional lots of 19.2 acres a piece will also be available for purchase.
Property Details
| Property Style | Residential |
|---|---|
| Zoning | RRB-1 |
| Building Style | Bungalow |
| Structure Style | Detached |
| Structures | Greenhouse, Shed |
| Utilities | Cable, Electricity, High Speed Internet, Telephone |
| Roof | Asphalt Shingle |
| Flooring | Hardwood, Laminate, Tile |
| Basement | Full, Fully Developed |
| Garage Type | Detached, Double, Heated, Wired |
| Driveway | Gravel |
| Foundation | Poured Concrete |
| Exterior | Vinyl |
| Heating Type | Baseboard, Fireplace, Heat Pump -Ductless, Hot Water, Ductless Cooling |
| Fuel Type | Electric, Solar, Wood |
| Water Source | Drilled Well |
| Sewage | Septic |
| Building Age | 14 Years |
| Year Built | 2012 |
| Land Features | Partially Cleared, Hardwood Bush, Landscaped, Softwood Bush, Wooded/Treed, Year Round Road |
| Water Frontage | Access: Bay, Access: Boat, Access: Deeded, Access: Public, View: Bay, View: Ocean |
Measurements
| Main Living Area | 3,285 sq ft |
|---|---|
| Total Living Area | 5,646 sq ft |
| Lot Size 1 | 161,172 sq ft |
| Total Lot Size | 161,172 sq ft |
| Building Dimensions | 73’ × 45’ |
| Lot Size Source | Other |
| Property Size | 3 To 9.99 Acres |
| Floor | Room | Dimensions |
|---|---|---|
| Main Floor | Foyer | 12’ × 7’ |
| Main Floor | Family Room | 18’ × 23’ |
| Main Floor | Kitchen | 18’ × 11’ |
| Main Floor | Dining Room | 17’ × 11’ |
| Main Floor | Laundry | 10’ × 7’ |
| Main Floor | Primary Bedroom | 15’ × 15’ |
| Main Floor | Storage | 6’ × 10’ |
| Main Floor | Ensuite Bath 1 | 14’ × 6’ |
| Main Floor | Bedroom | 11’ × 10’ |
| Main Floor | Bedroom | 11’ × 10’ |
| Main Floor | Bedroom | 10’ × 11’ |
| Main Floor | Eat In Kitchen | 13’ × 8’ |
| Main Floor | Bath 3 | 8’ × 7’ |
| Main Floor | Bedroom | 11’ × 9’ |
| Lower Level | Bath 2 | 14’ × 5’ |
| Lower Level | Rec Room | 14’ × 22’ |
| Lower Level | Games Room | 36’ × 17’ |
| Lower Level | Great Room | 32’ × 14’ |
| Lower Level | Storage | 3’ × 9’ |
| Lower Level | Utility | 16’ × 14’ |
| Lower Level | Workshop | 22’ × 15’ |
| Lower Level | Workshop | 22’ × 15’ |
| Lower Level | Bath 4 | 10’ × 12’ |
Features
- Alarm System
- Driveway
- Fireplace
- Garage
- Gym
- Hot Tub
- Landscaped
| Appliances Included | Cooktop - Electric, Oven - Electric, Dishwasher, Dryer - Electric, Washer, Microwave, Refrigerator, Water Purifier, Water Softener |
|---|---|
| Other Features | Air Exchanger, Alarm System, Secondary Suite, Hot Tub, Wood Stove(s), Electric Fireplace, Wood Fireplace |
Location Details
| County | Halifax |
|---|---|
| District | Timberlea, Prospect, St. Margarets Bay |
| Community Features | Golf Course, Park, Playground, Recreation Center, School Bus Service, Marina, Place Of Worship, Beach |
| Schools |
|





















































