59 Poplar Drive
Summary
|
Beds
3
|
Baths
2
|
Single Family
2,484 sq ft
|
Storeys
2
|
Welcome to this gorgeous 3-bedroom, 2-bath bungalow offering stylish comfort and thoughtful design throughout. The bright open-concept main living area features beautiful hardwood floors and flows effortlessly into the updated kitchen, complete with refreshed countertops and modern appliances—perfect for entertaining and everyday living. Recent upgrades include new windows, an updated man door and garage doors, and fresh paint throughout, adding to the home’s polished, move-in-ready appeal. Enjoy the convenience of an attached double car garage and a fully finished walkout lower level, providing excellent additional living space. Built with double wall construction for added efficiency and comfort, this home is also equipped with heat pumps for year-round comfort. Step outside to a beautifully landscaped, fully fenced yard—ideal for kids, pets, or relaxing in your own private retreat. Located close to amenities, the highway, and the East Hants Sportsplex, this home truly offers the perfect blend of lifestyle and location.
Property Details
| Property Style | Residential |
|---|---|
| Zoning | R1 |
| Building Style | Bungalow |
| Structure Style | Detached |
| Structures | Deck, Patio |
| Utilities | Cable, Electricity, Natural Gas |
| Roof | Asphalt Shingle |
| Flooring | Hardwood, Linoleum, Tile |
| Basement | Full, Fully Developed, Walkout |
| Garage Type | Attached, Double |
| Driveway | Double, Paved |
| Foundation | Poured Concrete |
| Exterior | Brick, Vinyl |
| Heating Type | Baseboard, Heat Pump -Ductless |
| Fuel Type | Electric |
| Water Source | Municipal |
| Sewage | Municipal |
| Building Age | 34 Years |
| Year Built | 1992 |
| Land Features | Cleared, Landscaped |
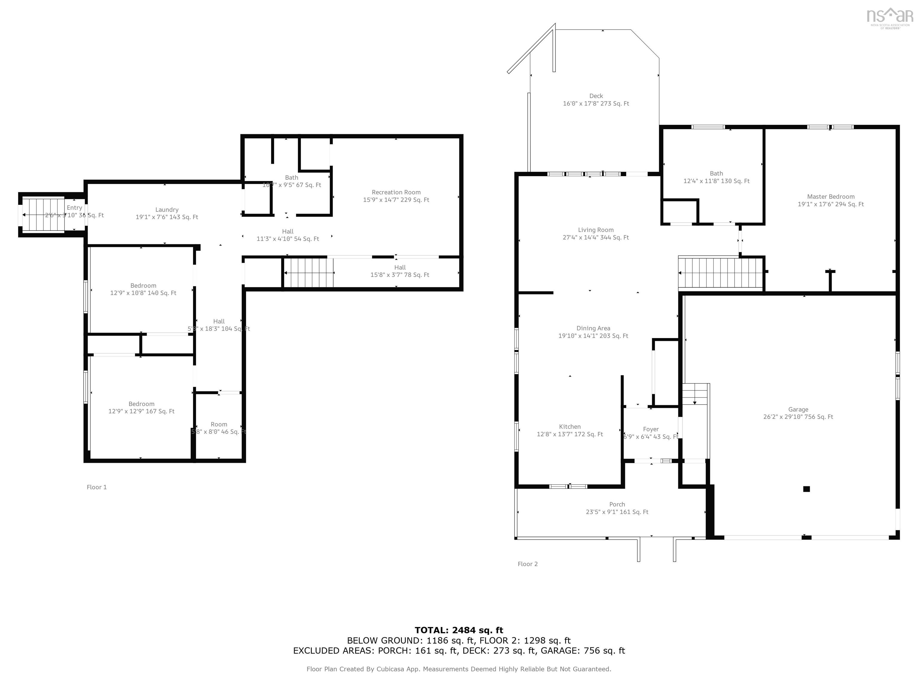
Measurements
| Main Living Area | 1,298 sq ft |
|---|---|
| Total Living Area | 2,484 sq ft |
| Lot Size 1 | 17,515 sq ft |
| Total Lot Size | 17,515 sq ft |
| Building Dimensions | 52’ × 49’ |
| Property Size | Under 0.5 Acres |
| Floor | Room | Dimensions |
|---|---|---|
| Main Floor | Mud Room | 6’11” × 6’5” |
| Main Floor | Kitchen | 12’10” × 13’8” |
| Main Floor | Dining Room | 19’1” × 14’1” |
| Main Floor | Living Room | 27’5” × 14’5” |
| Main Floor | Primary Bedroom | 19’1” × 17’7” |
| Main Floor | Bath 1 | 12’5” × 11’10” |
| Lower Level | Bedroom | 12’11” × 12’11” |
| Lower Level | Bedroom | 12’11” × 10’10” |
| Lower Level | Storage | 8’ × 8’ |
| Lower Level | Laundry | 19’1” × 7’7” |
| Lower Level | Family Room | 15’11” × 14’8” |
| Lower Level | Bath 2 | 10’8” × 9’6” |
Features
- Deck
- Driveway
- Garage
- Landscaped
- Patio
| Other Features | Central Vacuum, HRV (Heat Rcvry Ventln) |
|---|
Location Details
| County | Hants |
|---|---|
| District | East Hants, Colchester West |
| Community Features | Park, Playground, Recreation Center, School Bus Service, Place Of Worship |
| Schools |
|















































