63 Loon Point Trail
Summary
|
Beds
2
|
Baths
1
|
Condominium
596 sq ft
|
Storeys
1
|
The Villages of Long Lake is a Bare Land Condo Development on the Shores of Long Lake in East Uniacke. It is only 30 minutes from Burnside, 35 minutes from Halifax, Dartmouth and the Airport. Every lot in the development includes deeded access to this PRISTINE Lake. The very affordable condo fee takes care of road and lake access maintenance, pumping and cleaning of your septic tank and use of the 3 lake access points. We have a number of very affordable homes for sale on Loon Point Trail. The Periwinkle design provides a very affordable 2 bedroom 1 bath home. Our Heritage Country Homes provide superior protection from all the elements and are designed to save on heating and long term maintenance. Our unique building system and quality materials ensure energy effciency. All designs are constructed to the most up to date standards of the Nova Scotia Building Code. The Periwinkle includes a covered porch. We also have a number of raw land lots available from ? of acre in size and larger. Land price starts $57,385.00 We can also provide site services, driveway, lot prep for a house, well and septic system. We can also build your dream home.
Property Details
| Property Style | Residential |
|---|---|
| Zoning | RCDD |
| Building Style | Bungalow |
| Structure Style | Detached |
| Utilities | Cable, Electricity, High Speed Internet, Telephone |
| Roof | Asphalt Shingle |
| Flooring | Vinyl Plank |
| Driveway | Gravel |
| Foundation | Poured Concrete, Slab |
| Exterior | Wood Siding |
| Heating Type | Baseboard, Heat Pump -Ductless, Ductless Cooling |
| Fuel Type | Electric |
| Water Source | Drilled Well |
| Sewage | Septic |
| Land Features | Partially Cleared |
| Water Frontage | Access: Lake |
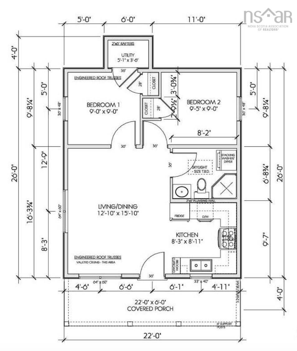
Measurements
| Main Living Area | 596 sq ft |
|---|---|
| Total Living Area | 596 sq ft |
| Lot Size 1 | 36,991 sq ft |
| Total Lot Size | 36,991 sq ft |
| Building Dimensions | 26’ × 22’ |
| Property Size | 0.5 To 0.99 Acres |
| Floor | Room | Dimensions |
|---|---|---|
| Main Floor | Living Room | 12’1” × 15’1” |
| Main Floor | Kitchen | 8’4” × 8’1” |
| Main Floor | Bath 1 | 6’10” × 8’ |
| Main Floor | Bedroom | 9’ × 9’ |
| Main Floor | Bedroom | 9’6” × 9’ |
| Main Floor | Utility | 5’1” × 3’7” |
Features
- Driveway
- Garage
- Parking
- Pets Allowed
| Condo Fee | $25 /month |
|---|---|
| Condo Fee Includes | Road, Trails, Parks And Lake Access Maintenance. As Well The Septic Tank Is Inspected On A Regular Basis And Cleaned As Required. |
Location Details
| County | Hants |
|---|---|
| District | East Hants, Colchester West |
| Community Features | Golf Course, Park, Playground, Recreation Center, School Bus Service, Marina |



