76 Merrimac Drive
Summary
|
Beds
4
|
Baths
2
|
Single Family
1,689 sq ft
|
Storeys
3
|
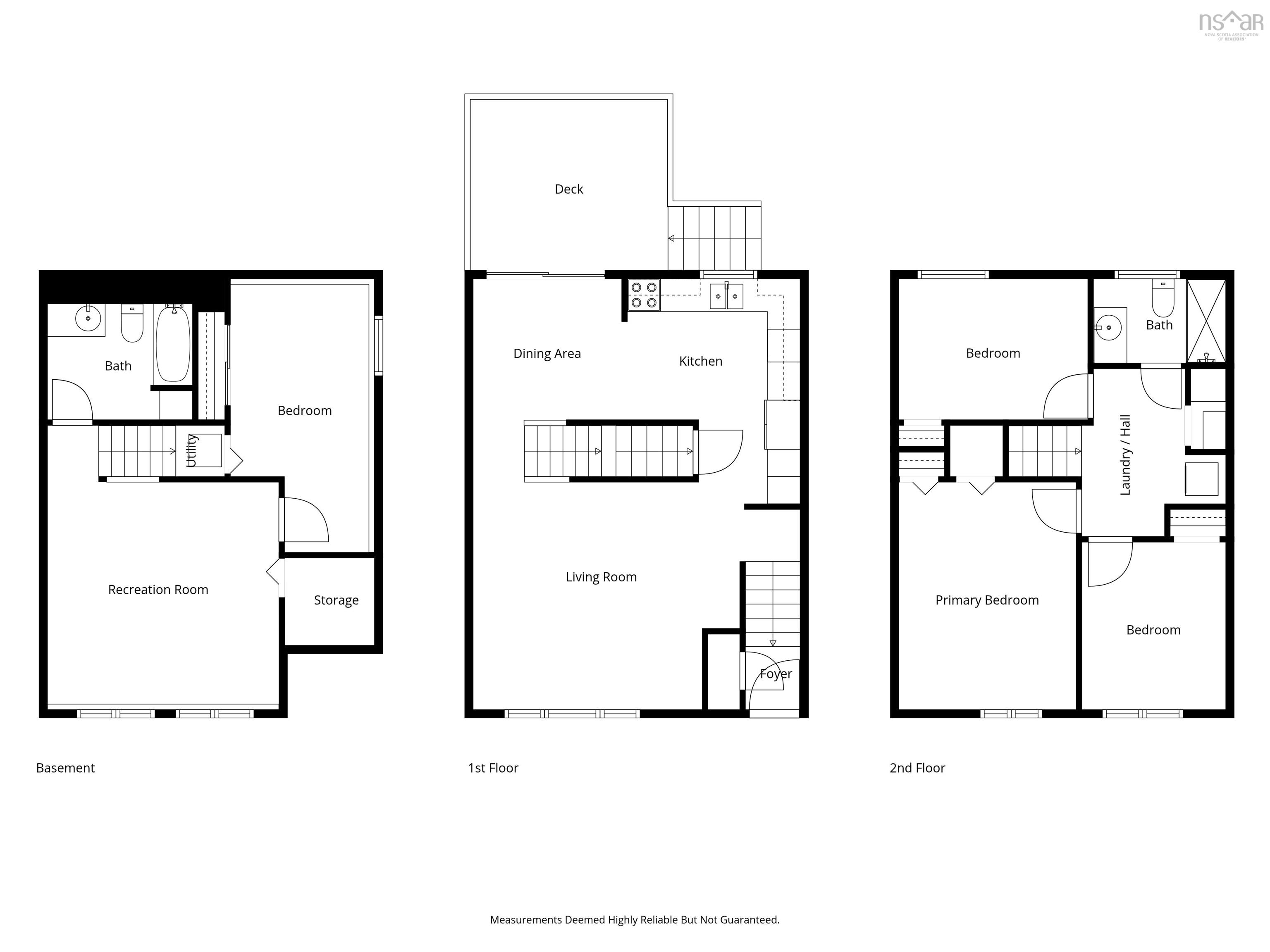
Discover this bright, semi-detached home in a wonderful family-friendly community close to all levels of schools with access to Late French Immersion. Offering an open-concept main floor with a spacious eat-in kitchen and living area, this home features 3 bedrooms upstairs plus a 4th bedroom on the lower level, and 2 full bathrooms. Enjoy a fully fenced backyard with a 10x12 deck and a 10x7 shed. Recent Upgrades offer a buyer peace of mind: In 2024: Driveway paved. 2023: Attic mold remediation, new insulation, and programmable thermostats added. 2021: New roof shingles, windows, and hot water heater. Ideally located near Cole Harbour Place, sports fields, and minutes from Rainbow Haven Beach. Move-in ready and waiting for your family!
Property Details
| Property Style | Residential |
|---|---|
| Zoning | R-2 |
| Building Style | 2 Storey |
| Structure Style | Semi-Detached |
| Structures | Deck, Shed |
| Utilities | Cable, Electricity, High Speed Internet, Telephone |
| Roof | Asphalt Shingle |
| Flooring | Carpet, Ceramic, Laminate |
| Basement | Full, Fully Developed |
| Driveway | Double, Paved |
| Foundation | Poured Concrete |
| Exterior | Brick, Vinyl |
| Heating Type | Baseboard |
| Fuel Type | Electric |
| Water Source | Municipal |
| Sewage | Municipal |
| Building Age | 40 Years |
| Year Built | 1986 |
| Land Features | Cleared, Level, Fenced, Year Round Road |
Measurements
| Main Living Area | 1,157 sq ft |
|---|---|
| Total Living Area | 1,689 sq ft |
| Lot Size 1 | 3,000 sq ft |
| Total Lot Size | 3,000 sq ft |
| Building Dimensions | 26’ × 21’ |
| Lot Size Source | Land Reg |
| Property Size | Under 0.5 Acres |
| Floor | Room | Dimensions |
|---|---|---|
| Main Floor | Foyer | 4’ × 3’ |
| Main Floor | Living Room | 16’ × 13’ |
| Main Floor | Eat In Kitchen | 19’ × 8’ |
| 2nd Level | Primary Bedroom | 14’ × 10’ |
| 2nd Level | Bedroom | 10’ × 8’ |
| 2nd Level | Bedroom | 11’ × 8’ |
| 2nd Level | Bath 1 | 7’ × 4’ |
| Basement | Rec Room | 13’ × 12’ |
| Basement | Bedroom | 11’ × 8’ |
| Basement | Bath 2 | 8’ × 7’ |
| Basement | Storage | 5’ × 4’ |
Features
- Deck
- Driveway
- Garage
| Appliances Included | Stove, Dishwasher, Dryer, Washer, Microwave Rng Hd Combo, Refrigerator |
|---|
Location Details
| County | Halifax |
|---|---|
| District | Forest Hills |
| Community Features | Park, Playground, Public Transit, Recreation Center, Shopping, Place Of Worship, Beach |
| Schools |
|

















































