Lot 2 Beamish Road
Summary
|
Beds
4
|
Baths
2
|
Single Family
2,272 sq ft
|
Storeys
2
|
Lot 2 Beamish Road | To Be Built | 4 Bed, 2 Bath | 1.9 Acre Lot in Mount Uniacke Here’s your chance to build your dream home in the peaceful community of Mount Uniacke! This thoughtfully designed 4-bedroom, 2-bathroom home will sit on a private 1.9-acre lot, offering modern comfort in a beautiful country setting—just a short drive from Halifax and Windsor. As a pre-construction build, you have the exciting opportunity to choose your own flooring, cabinetry, and fixtures with generous builder allowances—or simply go with the builder’s stylish and well-appointed standard package. Whether you’re customizing every detail or keeping it simple, this is a rare opportunity to own a brand-new home in a growing area.
Property Details
| Property Style | Residential |
|---|---|
| Zoning | RU |
| Building Style | Side Split |
| Structure Style | Detached |
| Structures | Deck, Patio |
| Utilities | Cable, Electricity, High Speed Internet, Telephone |
| Roof | Asphalt Shingle |
| Flooring | Laminate, Tile |
| Basement | Fully Developed |
| Garage Type | Attached, Heated, Wired |
| Driveway | Gravel |
| Foundation | Block Concrete |
| Exterior | Vinyl |
| Heating Type | Baseboard, Heat Pump -Ductless, Ductless Cooling |
| Fuel Type | Electric |
| Water Source | Drilled Well |
| Sewage | Septic |
| Land Features | Partially Cleared |
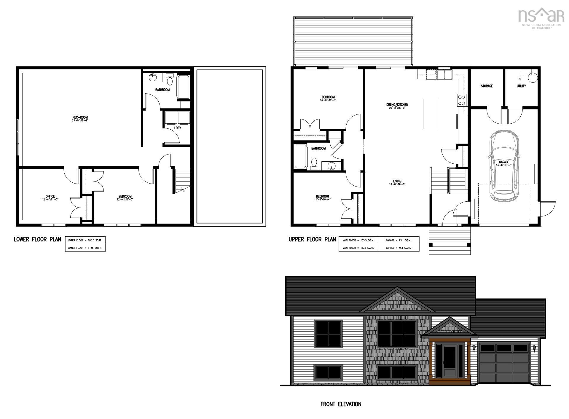
Measurements
| Main Living Area | 1,136 sq ft |
|---|---|
| Total Living Area | 2,272 sq ft |
| Lot Size 1 | 82,764 sq ft |
| Total Lot Size | 82,764 sq ft |
| Building Dimensions | 32’ × 50’2” |
| Property Size | 1 To 2.99 Acres |
| Floor | Room | Dimensions |
|---|---|---|
| Main Floor | Living Room | 13’ × 16’ |
| Main Floor | Kitchen | 20’10” × 15’ |
| Main Floor | Bedroom | 11’10” × 10’5” |
| Main Floor | Bath 1 | 4’ |
| Main Floor | Bedroom | 14’ × 12’ |
| Main Floor | Storage | 6’8” × 7’7” |
| Main Floor | Utility | 6’8” × 7’7” |
| Lower Level | Rec Room | 23’11” × 18’11” |
| Lower Level | Bath 2 | 4’ |
| Lower Level | Laundry/Bath | 5’4” × 5’11” |
| Lower Level | Den/Office | 12’5” × 11’ |
| Lower Level | Bedroom | 12’5” × 11’ |
Features
- Deck
- Driveway
- Garage
- Patio
| Other Features | Air Exchanger |
|---|
Location Details
| County | Halifax |
|---|---|
| District | East Hants, Colchester West |
| Community Features | Playground, School Bus Service, Place Of Worship, Beach |
| Schools |
|
Contact Agent
Michael Sears
michael.sears@ververealty.ca
Thank you for reaching out
Your message was delivered, and a confirmation email has been sent to the address provided. If you do not see it in your inbox, please check your junk or spam folder.
We’re sorry, but there was an issue submitting your request. Please try again shortly, or contact us directly if the problem persists.







