Lot 5 120 Beau Run
Summary
|
Beds
3
|
Baths
2
|
Single Family
1,472 sq ft
|
Storeys
1
|
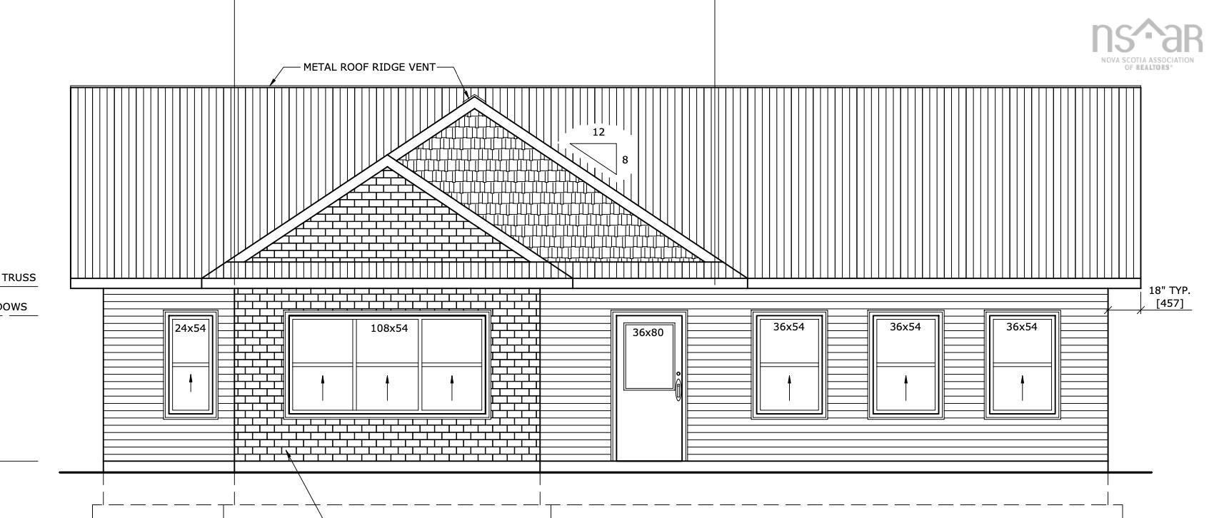
This sweet East Petpeswick bungalow is under construction and ready for occupancy late August 2026! With three bedrooms and 2 bathrooms spread over nearly 1500 sqft, this floorplan is functional and incredibly comfortable. The foyer allows space for the whole family to enter and drop their snowy boots. The living room offers ample space for loads of furniture, while being bright and grand with vaulted ceilings, and wonderful southern exposure. The open concept dining room and kitchen can fit your best dining set along with three bar stools at the island. This 4.5 acre lot offers incredible privacy and a two car detached garage! Get involved in this build now and have your choice of many interior finishes!
Property Details
| Property Style | Residential |
|---|---|
| Zoning | FV |
| Building Style | Bungalow,1 Level |
| Structure Style | Detached |
| Structures | Deck |
| Utilities | Electricity, High Speed Internet |
| Roof | Metal |
| Flooring | Laminate, Porcelain |
| Garage Type | Detached, Double |
| Driveway | Gravel |
| Foundation | Poured Concrete, Slab |
| Exterior | Vinyl |
| Heating Type | Baseboard, Heat Pump -Ductless |
| Fuel Type | Electric |
| Water Source | Drilled Well |
| Sewage | Septic |
| Land Features | Partial Landscaped |
Measurements
| Main Living Area | 1,472 sq ft |
|---|---|
| Total Living Area | 1,472 sq ft |
| Lot Size 1 | 196,020 sq ft |
| Total Lot Size | 196,020 sq ft |
| Building Dimensions | 46’ × 32’ |
| Lot Size Source | Survey |
| Property Size | 3 To 9.99 Acres |
| Floor | Room | Dimensions |
|---|---|---|
| Main Floor | Foyer | 8’ × 6’ |
| Main Floor | Living Room | 18’ × 16’ |
| Main Floor | Dining Room | 16’ × 10’ |
| Main Floor | Kitchen | 11’ × 11’ |
| Main Floor | Laundry | 5’ × 4’ |
| Main Floor | Bedroom | 11’ × 11’ |
| Main Floor | Bedroom | 11’ × 11’ |
| Main Floor | Bath 1 | 10’ × 6’ |
| Main Floor | Primary Bedroom | 13’ × 12’ |
| Main Floor | Ensuite Bath 1 | 10’ × 6’ |
Features
- Deck
- Driveway
- Garage
- Landscaped
| Other Features | Ensuite Bath, HRV (Heat Rcvry Ventln) |
|---|
Location Details
| County | Halifax |
|---|---|
| District | Halifax County East |
| Community Features | Park, Beach |



