Lot 7 Dark Pond Lane
Summary
|
Beds
3
|
Baths
4
|
Single Family
1,600 sq ft
|
Storeys
1
|
Your deram likeside home! We are breaking ground in just a few weeks, this stunning new construction offers 1,600 square feet of thoughtfully designed living space in a classic bungalow style. Perfectly positioned on a beautiful lake and less than 1 km from the ocean, this home combines the best of lakeside serenity with seaside charm—all just 30 minutes from downtown Halifax. Every detail of this 3-bedroom, 3.5-bath home has been carefully crafted to maximize comfort, style, and breathtaking views from the wall of windows at the back which lead out to your sun drenched patio!. Imagine waking up each morning to sparkling lake vistas from your bedroom, enjoying soaring vaulted ceilings, a spacious kitchen with a large island, and a luxurious primary suite featuring a walk-in closet and spa-like ensuite. Each bedroom has its own private bath, ensuring convenience and privacy for family and guests alike. Located in an exclusive subdivision of only 22 lots, Miners Ridge is protected by restrictive covenants, you’ll enjoy lasting peace, privacy, and timeless beauty. The welcoming community of West Petpeswick / Musquodobiot offers everything you need—public wharf and beach, a sailing club, schools, shops, restaurants, and nearby hospital—while maintaining a quiet, coastal lifestyle. Floorplans are available, and now is the perfect time to make this home uniquely yours with custom upgrades, colours, and finishes. Don’t miss this rare opportunity to create your dream home by the water—ready for you to move in by Spring 2026!
Property Details
| Property Style | Residential |
|---|---|
| Zoning | MU1 |
| Building Style | Bungalow |
| Structure Style | Detached |
| Utilities | Electricity, High Speed Internet |
| Roof | Metal |
| Flooring | Laminate, Tile, Vinyl |
| Driveway | Gravel |
| Foundation | Slab |
| Exterior | Vinyl |
| Heating Type | Baseboard, Heat Pump -Ductless |
| Fuel Type | Electric |
| Water Source | Drilled Well |
| Sewage | Septic |
| Land Features | Rolling, Wooded/Treed, Year Round Road |
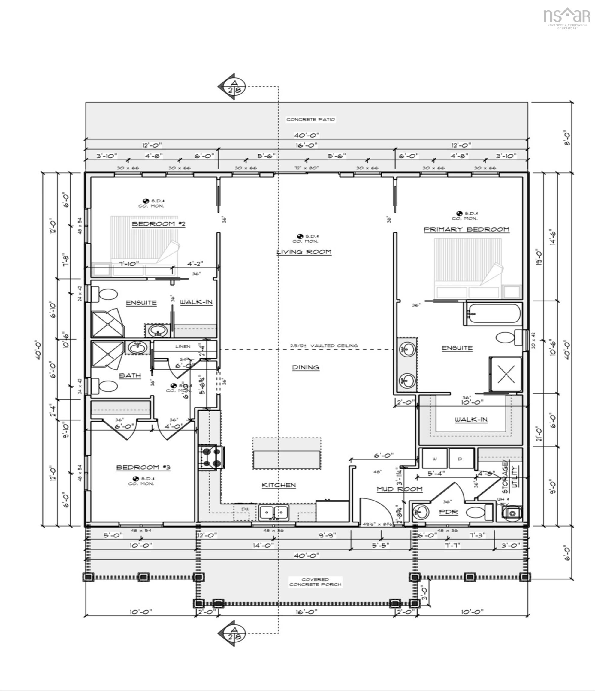
Measurements
| Main Living Area | 1,600 sq ft |
|---|---|
| Total Living Area | 1,600 sq ft |
| Water Frontage Measurements | 110 |
| Lot Size 1 | 88,000 sq ft |
| Total Lot Size | 88,000 sq ft |
| Building Dimensions | 40’ × 40’ |
| Lot Size Source | Survey |
| Property Size | 1 To 2.99 Acres |
| Floor | Room | Dimensions |
|---|---|---|
| Main Floor | Kitchen | 14’ × 15’ |
| Main Floor | Dining Room | 16’ × 15’ |
| Main Floor | Living Room | 16’ × 20’ |
| Main Floor | Primary Bedroom | 12’ × 19’ |
| Main Floor | Ensuite Bath 1 | 12’ × 10’7” |
| Main Floor | Bedroom | 12’ × 12’ |
| Main Floor | Bath 2 | 7’ × 12’ |
| Main Floor | Bedroom | 10’ × 12’ |
| Main Floor | Bath 3 | 7’ × 10’ |
| Main Floor | Mud Room | 5’6” × 7’ |
| Main Floor | Bath 4 | 8’ × 4’ |
| Main Floor | Laundry/Bath | 6’ × 4’ |
Features
- Driveway
- Garage
- Wheelchair Access
| Appliances Included | Water Softener |
|---|---|
| Other Features | Air Exchanger, Ensuite Bath, Wheelchair Access, Central Vac Roughed In |
Location Details
| County | Halifax |
|---|---|
| District | Halifax County East |
| Community Features | Park, Recreation Center, School Bus Service, Shopping, Marina, Place Of Worship, Beach |











