Lot 746 712 Celebration Drive
Summary
|
Beds
4
|
Baths
3
|
Single Family
2,443 sq ft
|
Storeys
2
|
Welcome to the market and soon to be under construction, one of Marchand Homes’ newest split-entry designs, set on a spacious 1.94-acre lot in the highly sought-after community of Kinloch Estates in Fall River. This executive residence is filled with thoughtful upgrades and modern features, making it the perfect family-focused home. Kinloch Estates is a prestigious subdivision known for its beautiful, oversized lots and peaceful surroundings, while being only a 6-minute drive to all amenities, including grocery stores and daily conveniences. Families will also appreciate the excellent schools, all located just a short distance at the front of the subdivision. Experience the perfect balance of privacy, modern living, and community in Kinloch Estates—a place you’ll be proud to call home.
Property Details
| Property Style | Residential |
|---|---|
| Zoning | R1-B |
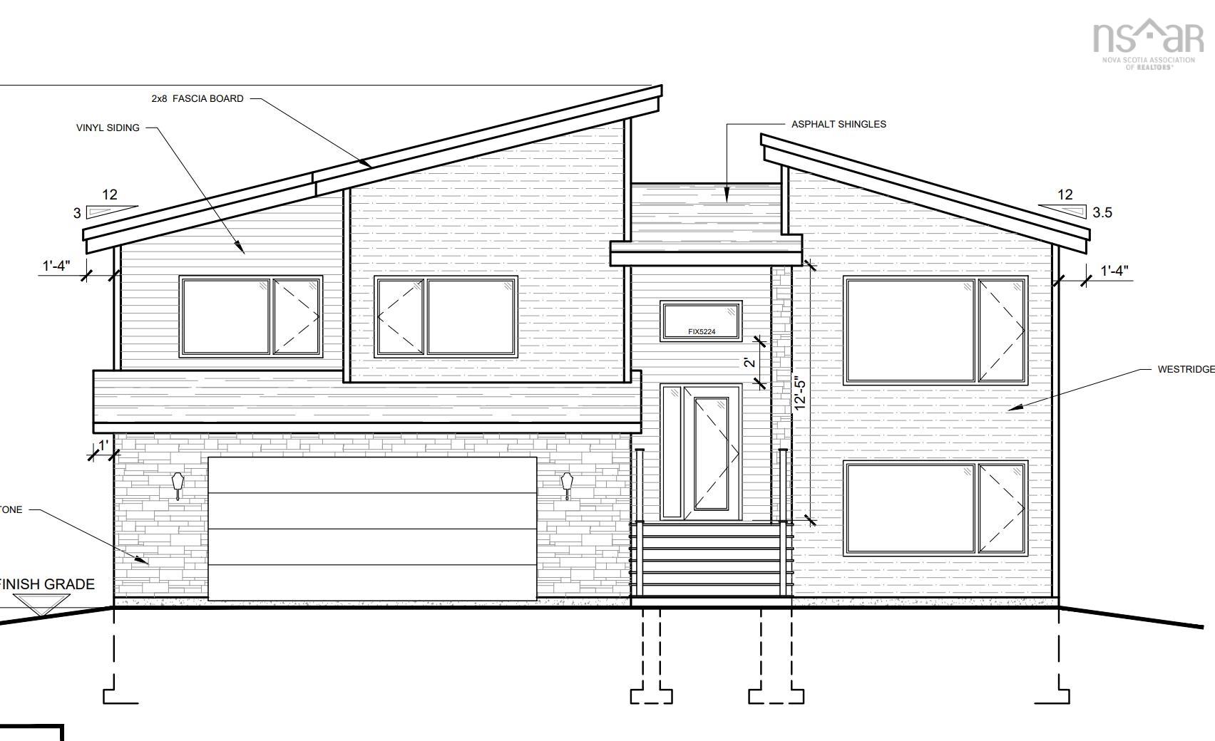
| Building Style | Split Entry |
| Structure Style | Detached |
| Structures | Deck |
| Utilities | Cable, Electricity, High Speed Internet, Telephone |
| Roof | Asphalt Shingle |
| Flooring | Laminate, Tile |
| Basement | Full, Fully Developed, Walkout |
| Garage Type | Double, Built-In, Heated, Wired |
| Driveway | Double, Gravel |
| Foundation | Poured Concrete |
| Exterior | Stone, Vinyl |
| Heating Type | Baseboard, Heat Pump -Ductless, Ductless Cooling |
| Fuel Type | Electric |
| Water Source | Drilled Well |
| Sewage | Septic |
| Land Features | Wooded/Treed, Year Round Road |
Measurements
| Main Living Area | 1,458 sq ft |
|---|---|
| Total Living Area | 2,443 sq ft |
| Lot Size 1 | 84,919 sq ft |
| Total Lot Size | 84,919 sq ft |
| Building Dimensions | 36’ × 46’ |
| Lot Size Source | Land Reg |
| Property Size | 1 To 2.99 Acres |
| Floor | Room | Dimensions |
|---|---|---|
| Main Floor | Kitchen | 15’5” × 10’7” |
| Main Floor | Dining Room | 13’ × 13’6” |
| Main Floor | Living Room | 13’ × 13’6” |
| Main Floor | Primary Bedroom | 15’5” × 13’1” |
| Main Floor | Ensuite Bath 1 | 8’8” × 11’7” |
| Main Floor | Bath 1 | 8’8” × 5’1” |
| Main Floor | Bedroom | 11’ × 11’2” |
| Main Floor | Bedroom | 11’5” × 10’1” |
| Lower Level | Bedroom | 10’8” × 13’ |
| Lower Level | Rec Room | 20’1” × 14’ |
| Lower Level | Bath 2 | 14’ × 7’10” |
| Lower Level | Mud Room | 13’6” × 8’5” |
| Lower Level | Laundry/Bath | 8’5” × 8’1” |
Features
- Deck
- Driveway
- Garage
| Other Features | Ensuite Bath, HRV (Heat Rcvry Ventln) |
|---|
Location Details
| County | Halifax |
|---|---|
| District | Waverley, Fall River, Oakfield |
| Community Features | Park, Playground, Public Transit, School Bus Service |



