LW14 209 Lewis Drive
Summary
|
Beds
4
|
Baths
4
|
Single Family
2,537 sq ft
|
Storeys
3
|
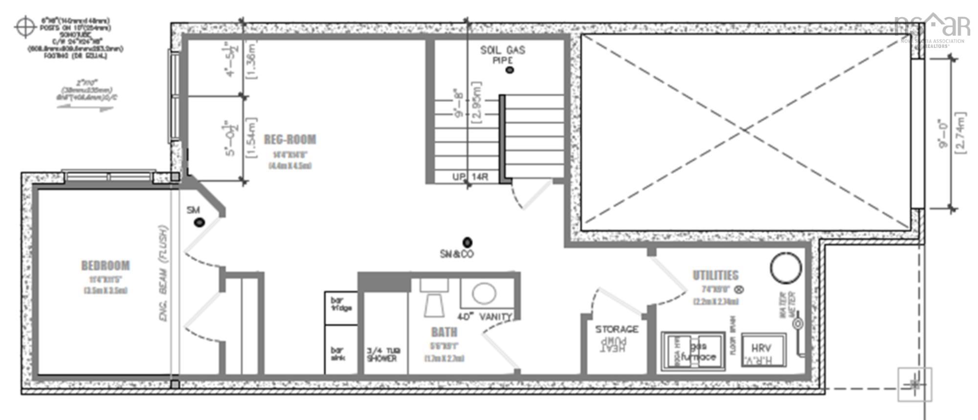
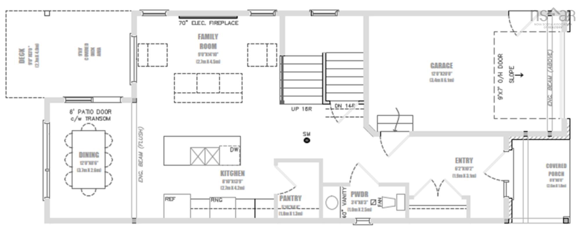
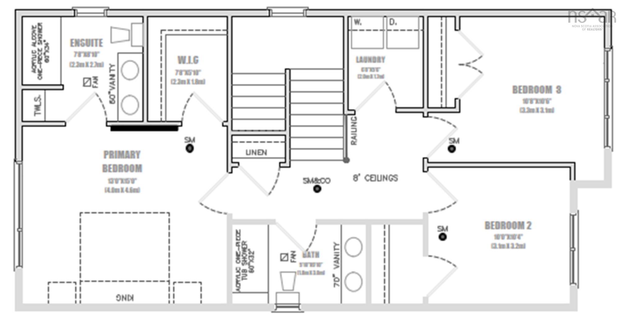
Introducing The Bellmore, a beautifully crafted 4-bedroom, 3.5-bath detached home byShaughnessy Homes in Belle Rose Park, West Bedford. Spanning 2,537 sq. ft. across three finished levels on a 34’ lot, this homeblends modern style with everyday functionality. The main floor features an open-concept layout with a designer kitchen boasting awalk-in pantry, premium quartz countertops, and soft-close cabinetry. A stylish dining room bump-out adds a touch of elegance,perfect for gatherings. Engineered hardwood flows through the main and upper levels, complemented by an electric fireplace in theliving area. Step outside to a beautifully finished composite deck, providing long-lasting durability with low maintenance. The finishedbasement, with durable laminate flooring, offers flexible space for family or guests. If you're looking for a walk-out basement equippedwith a wet bar, washer and dryer rough in, bedroom, bathroom and a rec room - we have a limited number of The Bellmore walkoutmodels for $859,900, perfect for extended members of the family. Both versions include a fully ducted heat pump with natural gasbackup, plus rough-ins for a gas range, dryer, BBQ, water heater, and a 50 AMP EV charger. Nestled off Larry Uteck Blvd in theserene Belle Rose Park, this home is steps from schools, parks, and amenities. Built with Shaughnessy Homes’ signature quality,The Bellmore is a rare find in one of Bedford’s most desirable communities.
Property Details
| Property Style | Residential |
|---|---|
| Zoning | BWCDD |
| Building Style | 2 Storey |
| Structure Style | Detached |
| Structures | Deck |
| Utilities | Cable, Electricity, High Speed Internet, Natural Gas, Telephone |
| Roof | Asphalt Shingle |
| Flooring | Engineered Hardwood, Laminate, Tile |
| Basement | Fully Developed |
| Garage Type | Single, Built-In, Heated, Wired |
| Driveway | Paved |
| Foundation | Poured Concrete |
| Exterior | Stone, Vinyl |
| Heating Type | Heat Pump -Ducted |
| Fuel Type | Electric, Natural Gas |
| Water Source | Municipal |
| Sewage | Municipal |
| Year Built | 2025 |
| Land Features | Landscaped |
Measurements
| Main Living Area | 1,730 sq ft |
|---|---|
| Total Living Area | 2,537 sq ft |
| Lot Size 1 | 4,603 sq ft |
| Total Lot Size | 4,603 sq ft |
| Building Dimensions | 22’ × 48’5” |
| Property Size | Under 0.5 Acres |
| Floor | Room | Dimensions |
|---|---|---|
| Main Floor | Foyer | 6’2” × 10’2” |
| Main Floor | Bath 1 | 2’ |
| Main Floor | Living Room | 9’ × 14’1” |
| Main Floor | Dining Room | 12’ × 8’7” |
| Lower Level | Kitchen | 8’1” × 13’11” |
| Lower Level | Rec Room | 14’5” × 14’10” |
| Lower Level | Bedroom | 11’5” × 11’6” |
| Lower Level | Bath 3 | 4’ |
| 2nd Level | Primary Bedroom | 13’ × 15’ |
| 2nd Level | Ensuite Bath 1 | 5’ |
| 2nd Level | Bedroom | 10’10” × 10’7” |
| 2nd Level | Bedroom | 10’ × 10’5” |
| 2nd Level | Bath 2 | 4’ |
| 2nd Level | Laundry | 6’10” × 5’7” |
Features
- Deck
- Driveway
- Fireplace
- Garage
- Landscaped
| Other Features | Ensuite Bath, HRV (Heat Rcvry Ventln), Electric Fireplace |
|---|
Location Details
| County | Halifax |
|---|---|
| District | Bedford |
| Community Features | Park, Playground, Public Transit, Recreation Center, School Bus Service, Shopping |
| Schools |
|




