PUN-68B 170 Puncheon Way
Summary
|
Beds
3
|
Baths
4
|
Single Family
2,113 sq ft
|
Storeys
3
|
Welcome to the “Nora” model by Rooftight Homes, now available for pre-purchase in the upcoming newest phase of The Parks of West Bedford — starting at just $699,900! This stylish ground-level entry townhouse offers three thoughtfully designed levels of living, perfect for today’s modern lifestyle. *This model price is NOT an end unit.* Enjoy a well appointed standard always delivered by Rooftight Homes. Two elegant hardwood staircases, and solid surface countertops in every space—delivering both durability and contemporary flair. Stay comfortable year-round with efficient electric baseboard heat and ductless heat pump in the main living room. Buyers will appreciate the quality standard finishes as well as a selection of upgrade options available to personalize your home to your style. Discover the perfect blend of comfort, convenience, and customization in one of West Bedford’s most desirable communities.
Property Details
| Property Style | Residential |
|---|---|
| Zoning | BWCDD |
| Building Style | 2 Storey,Townhouse |
| Structure Style | Townhouse |
| Structures | Deck |
| Utilities | Cable, Electricity, High Speed Internet, Telephone |
| Roof | Fibreglass |
| Flooring | Laminate, Tile |
| Basement | Full, Fully Developed, Walkout |
| Garage Type | Single, Built-In, Heated, Wired |
| Driveway | Double, Paved |
| Foundation | Poured Concrete |
| Exterior | Stone, Vinyl |
| Heating Type | Baseboard, Heat Pump -Ductless, Ductless Cooling |
| Fuel Type | Electric |
| Water Source | Municipal |
| Sewage | Municipal |
| Land Features | Partially Cleared, Partial Landscaped |
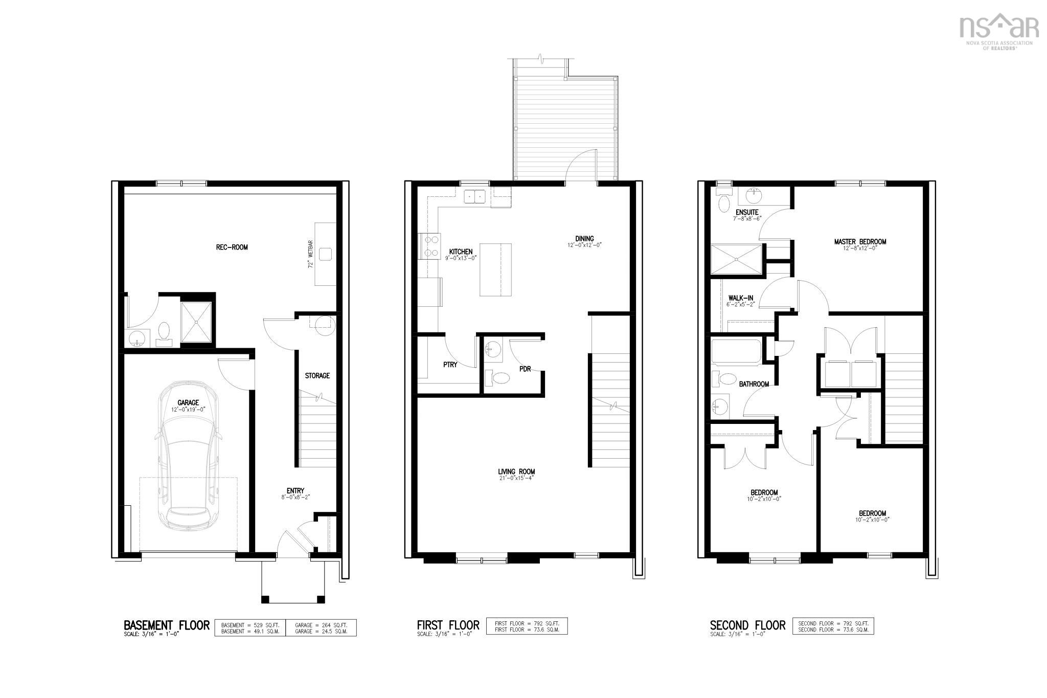
Measurements
| Main Living Area | 1,584 sq ft |
|---|---|
| Total Living Area | 2,113 sq ft |
| Lot Size 1 | 17,685 sq ft |
| Total Lot Size | 17,685 sq ft |
| Lot Size Source | Land Reg |
| Property Size | Under 0.5 Acres |
| Floor | Room | Dimensions |
|---|---|---|
| Main Floor | Living Room | 21’ × 15’5” |
| Main Floor | Dining Room | 12’ × 12’ |
| Main Floor | Kitchen | 9’ × 13’ |
| Main Floor | Bath 2 | 6’ × 5’2” |
| Lower Level | Foyer | 8’ × 8’2” |
| Lower Level | Rec Room | 11’5” × 12’ |
| Lower Level | Bath 1 | 6’ × 5’2” |
| 2nd Level | Primary Bedroom | 12’10” × 12’ |
| 2nd Level | Ensuite Bath 1 | 7’10” × 8’7” |
| 2nd Level | Bedroom | 10’2” × 10’ |
| 2nd Level | Bedroom | 12’2” × 10’ |
| 2nd Level | Bath 3 | 6’10” × 8’7” |
Features
- Deck
- Driveway
- Garage
- Landscaped
| Appliances Included | Range, Dishwasher, Dryer, Washer, Refrigerator |
|---|---|
| Other Features | Air Exchanger, Ensuite Bath, HRV (Heat Rcvry Ventln) |
Location Details
| County | Halifax |
|---|---|
| District | Kingswood, Haliburton Hills, Hammonds Pl. |
| Schools |
|



