PUN73C 189 Puncheon Way Way
Summary
|
Beds
3
|
Baths
4
|
Single Family
2,122 sq ft
|
Storeys
3
|
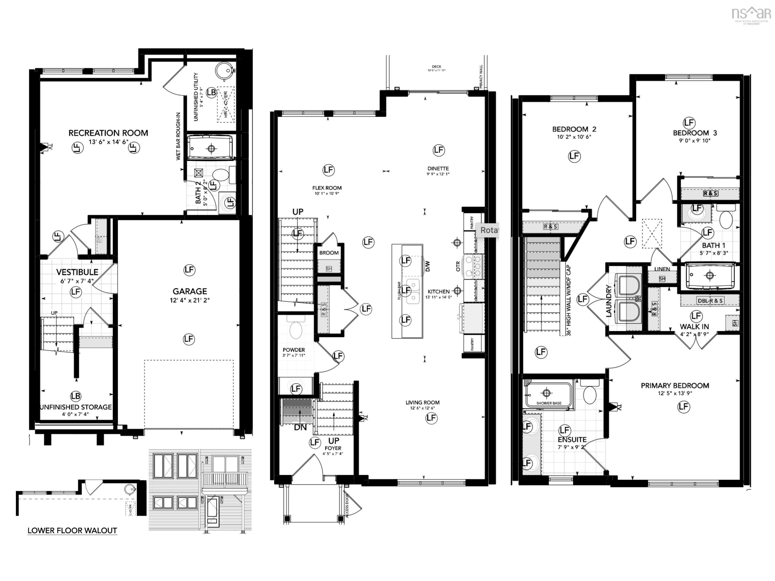
The Aztec Cresco built townhomes in The Parks of West Bedford are a limited collection that offers over 2,100 sqft of thoughtfully designed living space. Featuring 3 bedrooms and 3.5 bathrooms, this flexible layout adapts easily to your lifestyle. The main floor includes an inviting eat-in kitchen, dual living areas, designated dining space, half bath, and excellent storage. Upstairs, the spacious primary suite offers a custom tiled ensuite shower and ample closet space, along with two additional well-sized bedrooms. The fully finished walk-out lower level adds a large rec room and full bathroom, ideal for a home office, gym, or guest space. A sizeable garage, additional storage, and two ductless heat pumps for efficient year-round comfort complete the package. Located in the established Brookline Park community with walkable streets, parks, and convenient access to schools and amenities, this is your final opportunity to own a brand new Cresco townhome in this phase. Limited availability.
Property Details
| Property Style | Residential |
|---|---|
| Zoning | BWCDD |
| Building Style | 3 Level |
| Structure Style | Townhouse |
| Structures | Deck |
| Utilities | Cable, Electricity, High Speed Internet, Telephone |
| Roof | Asphalt Shingle |
| Flooring | Ceramic, Hardwood, Laminate |
| Basement | Fully Developed, Walkout |
| Garage Type | Single, Built-In, Heated, Wired |
| Driveway | Paved |
| Foundation | Poured Concrete |
| Exterior | Stone, Vinyl |
| Heating Type | Baseboard, Heat Pump -Ductless |
| Fuel Type | Electric |
| Water Source | Municipal |
| Sewage | Municipal |
| Land Features | Landscaped |
Measurements
| Main Living Area | 1,607 sq ft |
|---|---|
| Total Living Area | 2,122 sq ft |
| Lot Size 1 | 19,149 sq ft |
| Total Lot Size | 19,149 sq ft |
| Building Dimensions | 22’ × 39’7” |
| Property Size | Under 0.5 Acres |
| Floor | Room | Dimensions |
|---|---|---|
| Main Floor | Foyer | 4’ × 7’ |
| Main Floor | Living Room | 12’ × 12’ |
| Main Floor | Bath 1 | 3’ × 7’ |
| Main Floor | Kitchen | 13’ × 14’ |
| Main Floor | Dining Nook | 9’ × 12’ |
| Main Floor | Family Room | 10’ × 10’ |
| Lower Level | Rec Room | 13’ × 14’ |
| Lower Level | Bath 3 | 5’ × 8’ |
| Lower Level | Storage | 4’ × 7’ |
| Lower Level | Utility | 5’ × 7’ |
| 2nd Level | Primary Bedroom | 12’ × 13’ |
| 2nd Level | Ensuite Bath 1 | 7’ × 9’ |
| 2nd Level | Bedroom | 10’ × 10’ |
| 2nd Level | Bedroom | 9’ × 9’ |
| 2nd Level | Bath 2 | 5’ × 8’ |
Features
- Deck
- Driveway
- Garage
- Gym
- Landscaped
| Appliances Included | Microwave Rng Hd Combo |
|---|---|
| Other Features | Ensuite Bath, HRV (Heat Rcvry Ventln) |
Location Details
| County | Halifax |
|---|---|
| District | Kingswood, Haliburton Hills, Hammonds Pl. |
| Community Features | Park, Playground, Public Transit, Recreation Center, School Bus Service, Shopping, Place Of Worship |
| Schools |
|

