SMD09A 66 Simona Drive
Summary
|
Beds
4
|
Baths
4
|
Single Family
2,427 sq ft
|
Storeys
3
|
The Fernleigh by Cresco, located in the sought-after Parks of Lake Charles offers a thoughtfully designed semi-detached home with just over 2,400 sq. ft. of finished living space, a single-car garage, and a fully finished walkout lower level, set on beautifully treed backyard lots. This functional layout features 4 bedrooms and 3.5 bathrooms, including a spacious primary suite complete with a custom-tiled ensuite shower and walk-in closet. The bright, open-concept main floor is filled with natural light and anchored by a large kitchen with an island, quartz countertops, ceiling-height cabinetry, and under-cabinet lighting creating a stylish and practical space for everyday living and entertaining. The finished walkout lower level includes a fourth bedroom, full bathroom, and generous family room with wet bar rough-in, offering flexible space for guests, extended family, or recreation. Heating includes ductless heat pumps for efficient year-round comfort, with electric baseboards throughout. Move-in ready at the end of this summer. Experience quality craftsmanship, modern finishes, and the lifestyle that comes with living in Lake Charles.
Property Details
| Property Style | Residential |
|---|---|
| Zoning | PW-CDD |
| Building Style | 2 Storey |
| Structure Style | Semi-Detached |
| Structures | Deck |
| Utilities | Cable, Electricity, High Speed Internet, Telephone |
| Roof | Asphalt Shingle |
| Flooring | Ceramic, Hardwood, Laminate, Tile |
| Basement | Fully Developed, Walkout |
| Garage Type | Single, Built-In, Heated, Wired |
| Driveway | Paved |
| Foundation | Poured Concrete |
| Exterior | Brick, Stone, Vinyl |
| Heating Type | Baseboard, Heat Pump -Ductless, Ductless Cooling |
| Fuel Type | Electric |
| Water Source | Municipal |
| Sewage | Municipal |
| Land Features | Landscaped, Softwood Bush, Wooded/Treed |
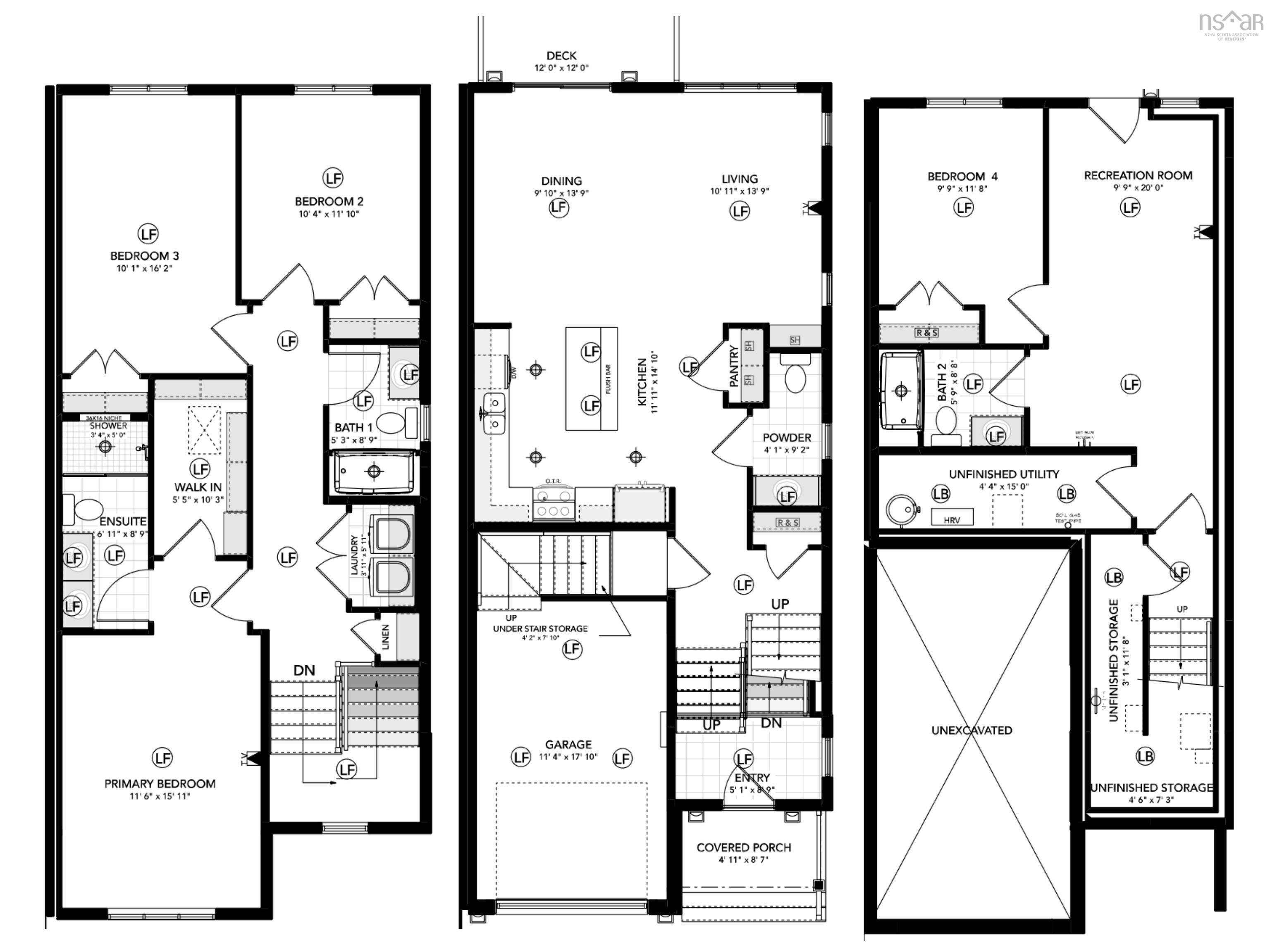
Measurements
| Main Living Area | 1,744 sq ft |
|---|---|
| Total Living Area | 2,427 sq ft |
| Lot Size 1 | 15,495 sq ft |
| Total Lot Size | 15,495 sq ft |
| Building Dimensions | 22’ × 50’10” |
| Lot Size Source | Land Reg |
| Property Size | Under 0.5 Acres |
| Floor | Room | Dimensions |
|---|---|---|
| Main Floor | Foyer | 5’1” × 8’10” |
| Main Floor | Bath 1 | 4’1” × 9’2” |
| Main Floor | Kitchen | 11’1” × 14’1” |
| Main Floor | Living Room | 10’1” × 13’11” |
| Main Floor | Dining Nook | 9’1” × 13’11” |
| Lower Level | Rec Room | 9’11” × 20’ |
| Lower Level | Bedroom | 9’11” × 11’10” |
| Lower Level | Bath 3 | 5’11” × 8’10” |
| Lower Level | Storage | 4’5” × 15’ |
| Lower Level | Storage | 3’1” × 11’10” |
| Lower Level | Storage | 4’7” × 7’4” |
| 2nd Level | Primary Bedroom | 11’7” × 16’1” |
| 2nd Level | Ensuite Bath 1 | 8’11” × 11’11” |
| 2nd Level | Laundry | 3’1” × 5’1” |
| 2nd Level | Bedroom | 10’5” × 11’1” |
| 2nd Level | Bedroom | 10’1” × 16’2” |
| 2nd Level | Bath 2 | 5’4” × 8’11” |
Features
- Deck
- Driveway
- Garage
- Landscaped
| Appliances Included | Microwave Rng Hd Combo |
|---|---|
| Other Features | Ensuite Bath, HRV (Heat Rcvry Ventln) |
Location Details
| County | Halifax |
|---|---|
| District | Dartmouth Montebello, Port Wallace, Keystone |
| Community Features | Park, Playground, Public Transit, Recreation Center, School Bus Service, Shopping, Place Of Worship |
| Schools |
|





