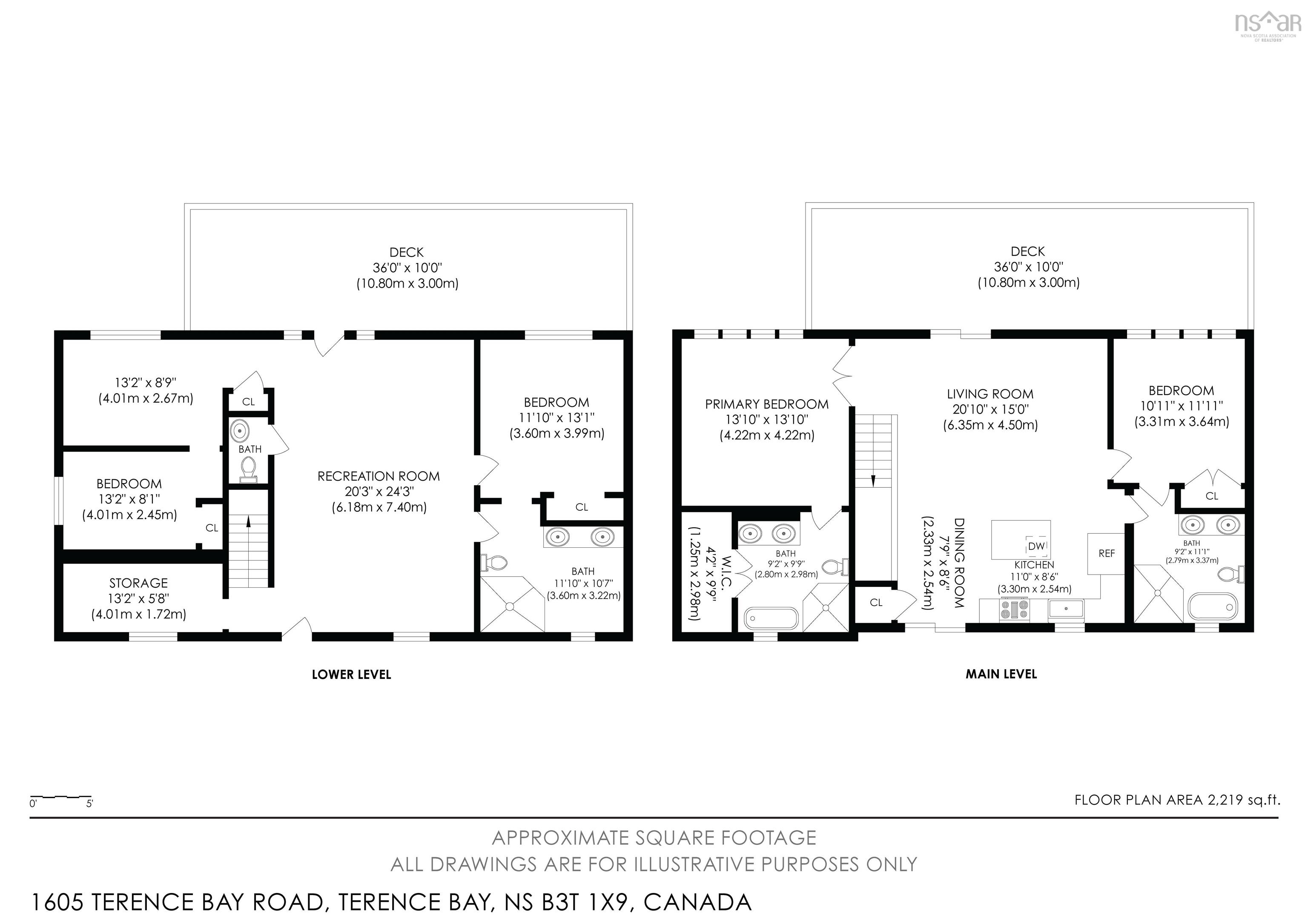
1605 Terence Bay Road
Summary
|
Beds
4
|
Baths
4
|
Single Family
2,225 sq ft
|
Storeys
2
|
Ocean views, New Build, Energy efficient, Exceptional quality, possible 2 units! Flooded with natural light from multi-pane windows, this stunning Terence Bay home captures sweeping Atlantic Ocean views from both expansive decks and the bedrooms. The main living space is on the top floor — for the best views, of course — where ¾" maple hardwood floors flow through an airy, open layout designed for comfort and connection. The kitchen features sleek white cabinetry, quartz countertops, stainless steel appliances, and a walk-in pantry roughed in for optional main floor laundry. Step out to the 36' x 10' deck with a wood pergola — the perfect spot to relax or entertain while enjoying the ocean breeze. The serene primary bedroom offers a spa-inspired 5-piece ensuite with a soaker tub, custom tiled shower, double vanity, and walk-in closet. A second bedroom on this level also enjoys ocean views and access to a luxurious 5-piece cheater bath. The bright, fully above-ground lower level offers incredible flexibility — with large windows throughout, a cozy den/office, two bedrooms (one with cheater ensuite to the third 5-piece bath), a powder room, and a spacious recreation room discreetly roughed in for a second kitchen. Perfect for guests, extended family, or easy conversion to a rental suite. Built to exceed standards, this home delivers outstanding efficiency: two 24,000 BTU heat pumps, wall heaters in every room, and extra insulation — including 24" of blown-in insulation in the attic — to keep comfort high and utilities low. Outdoor enthusiasts will love the location: kayak rentals nearby, two golf courses within 15 minutes, and easy access to Prospect Road shops and services. Just 20 minutes from Bayers Lake or Peggy’s Cove, this home blends coastal beauty, thoughtful design, and modern efficiency — the best of East Coast living.
Property Details
| Property Style | Residential |
|---|---|
| Zoning | MU-1 |
| Building Style | 2 Level |
| Structure Style | Detached |
| Structures | Deck |
| Utilities | Cable, Electricity, High Speed Internet, Telephone |
| Roof | Metal |
| Flooring | Hardwood, Tile, Vinyl Plank |
| Garage Type | Detached, 1.5 |
| Driveway | Double, Gravel |
| Foundation | Poured Concrete |
| Exterior | Vinyl |
| Heating Type | Heat Pump -Ductless, Other, Ductless Cooling |
| Fuel Type | Electric |
| Water Source | Drilled Well |
| Sewage | Septic |
| Building Age | 2 Years |
| Year Built | 2024 |
| Land Features | Partially Cleared, Wooded/Treed |
| Water Frontage | View: Bay, View: Ocean |
Measurements
| Main Living Area | 1,200 sq ft |
|---|---|
| Total Living Area | 2,225 sq ft |
| Lot Size 1 | 19,842 sq ft |
| Total Lot Size | 19,842 sq ft |
| Building Dimensions | 48’ × 25’ |
| Lot Size Source | Land Reg |
| Property Size | Under 0.5 Acres |
| Floor | Room | Dimensions |
|---|---|---|
| Main Floor | Living Room | 12’6” × 17’6” |
| Main Floor | Kitchen | 18’11” × 11’ |
| Main Floor | Dining Room | |
| Main Floor | Primary Bedroom | 13’2” × 13’7” |
| Main Floor | Ensuite Bath 1 | 9’ × 9’1” |
| Main Floor | Bedroom | 11’ × 12’ |
| Main Floor | Bath 1 | 9’4” × 9’1” |
| Lower Level | Family Room | 23’7” × 16’5” |
| Lower Level | Bedroom | 12’2” × 11’10” |
| Lower Level | Bath 2 | 8’8” × 11’6” |
| Lower Level | Den/Office | 8’1” × 13’ |
| Lower Level | Bedroom | 11’ × 8’ |
| Lower Level | Bath 3 | 13’6” × 5’6” |
| Lower Level | Utility | 13’6” × 5’6” |
Features
- Deck
- Driveway
- Garage
| Appliances Included | Range, Dishwasher, Microwave Rng Hd Combo, Refrigerator |
|---|---|
| Other Features | Ensuite Bath, HRV (Heat Rcvry Ventln) |
Location Details
| County | Halifax |
|---|---|
| District | Timberlea, Prospect, St. Margarets Bay |
| Community Features | Park, Playground, Recreation Center, School Bus Service, Place Of Worship, Beach |
| Schools |
|













































